Spacious end-terrace with garden and strong refurbishment potential close to the city.
Chain free four-bedroom Victorian mid-terrace
Large rear garden with patio and lawned area
Close to Cardiff city centre, amenities and transport
High ceilings, bay window and period decorative stonework
Requires full modernisation: kitchen, bathroom, decoration
Reported roof issues and general maintenance needed
Subsidence repairs completed with 10-year insurance guarantee
Small plot, EPC rating D, walls likely uninsulated
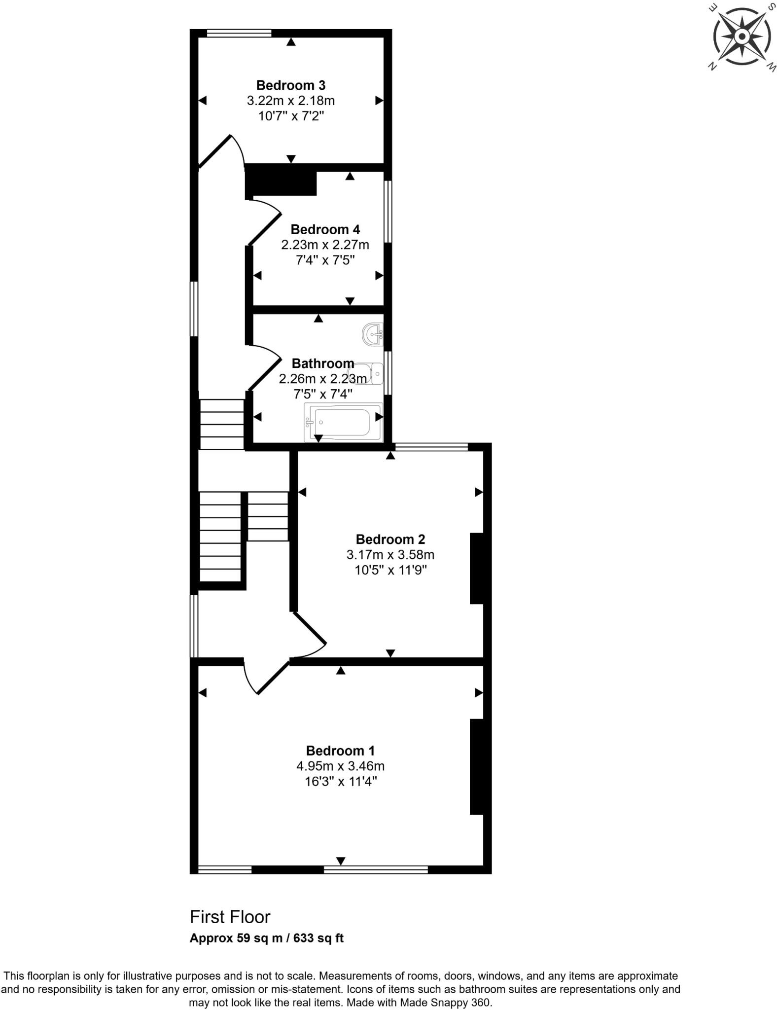
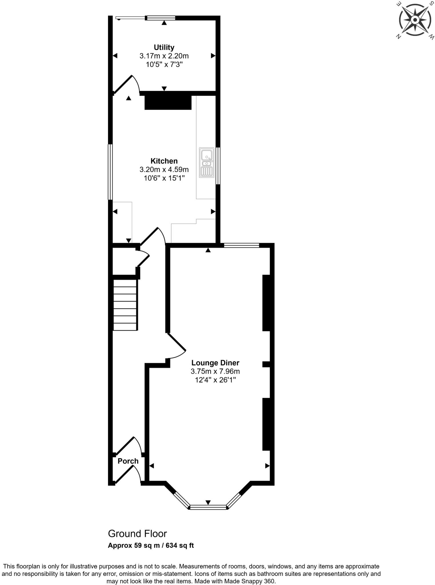
A spacious Victorian mid-terrace on Habershon Street, offered chain free and ready for a full renovation. The house has four upstairs bedrooms, a large front reception with bay window and high ceilings, and a sizeable rear garden that can be transformed into a comfortable family outside space. Its location in Splott places the city centre, local shops and transport links within easy reach.
The property is best suited to buyers wanting to modernise and add significant value — families seeking extra space or investors/developers looking for a refurbishment project. Many original period features remain, including decorative stonework and tall ceilings, which offer scope to retain character while upgrading layouts, finishes and services.
Practical realities are clear: the house requires comprehensive redecoration and modernisation throughout, the bathroom and kitchen need complete renewal, and there are reported roof issues. External walls are likely uninsulated (as built), so insulating and improving heating efficiency should be factored into budgets. Important: subsidence repairs were recently completed and are covered by a 10‑year insurance-backed guarantee, providing documented protection for that specific issue.
Overall this freehold property is a blank-canvas opportunity in a very deprived but improving urban area — attractive for buyers prepared to invest time and money to create a comfortable, characterful family home or to refurbish for rental/ resale uplift.
4 bedroom terraced house for sale in Habershon Street, Splott, Cardiff, CF24 — £270,000 • 4 bed • 2 bath • 1055 ft²
3 bedroom terraced house for sale in Habershon Street, Splott, Cardiff, CF24 — £260,000 • 3 bed • 1 bath • 1102 ft²
4 bedroom terraced house for sale in Moorland Road, Splott, Cardiff CF24 2LF, CF24 — £240,000 • 4 bed • 1 bath • 1247 ft²
4 bedroom terraced house for sale in Railway Street, Cardiff, CF24 — £280,000 • 4 bed • 2 bath • 1449 ft²
3 bedroom terraced house for sale in Habershon Street, Splott, Cardiff, CF24 — £270,000 • 3 bed • 1 bath • 791 ft²
4 bedroom terraced house for sale in Carlisle Street, Cardiff, CF24 — £270,000 • 4 bed • 1 bath • 997 ft²


































































