Village location with scope to modernise and add value.
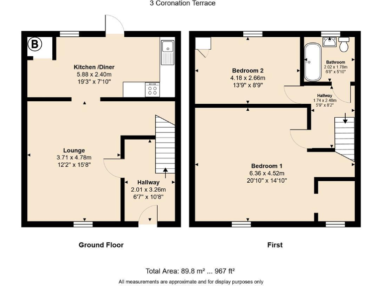
Two bedrooms in a Victorian stone terraced cottage
Requires complete renovation throughout; likely services upgrades
Freehold and offered with no upper chain
Open-plan kitchen/diner/lounge—good reconfiguration potential
Rear yard with two outhouses; small front gravel garden
Oil central heating plus log burner; main fuel includes wood logs
No on-site parking; modest room sizes and some low ceilings
Double glazing present but install date unknown; walls likely uninsulated
This two-bedroom Victorian terrace in Longhorsley is a clear project for buyers who want to create a bespoke home. The property occupies a small plot with a gravelled front garden, enclosed rear yard and two useful outhouses, one housing the oil tank. The open-plan ground floor offers scope to reconfigure and modernise the kitchen, dining and living areas to suit contemporary living.
The house is offered freehold with no upper chain, making it straightforward to progress. Key positives include double glazing (install date unknown), a working log burner and an established village setting with shops, a pub and a Good-rated primary school nearby. Broadband and mobile coverage are adequate for village life; main services are connected.
Buyers should be aware the property requires complete renovation throughout. Expect cosmetic and likely structural and services upgrades: insulation is assumed lacking in the stone walls, heating relies on oil and wood, and some windows are secondary/ single glazed. There is no on-site parking and rooms are modest in size, with low ceilings in parts.
This cottage suits a first-time buyer prepared to renovate, a small-scale investor or someone seeking a weekend/holiday base in Northumberland. With refurbishment the house has realistic potential to increase in value, but purchasers should budget for comprehensive works and commission a survey before proceeding.
2 bedroom end of terrace house for sale in East End Cottages, East Road, Longhorsley, Morpeth, Northumberland, NE65 — £195,000 • 2 bed • 1 bath • 601 ft²
3 bedroom cottage for sale in Bankhead Cottage, Longhorsley, NE65 — £275,000 • 3 bed • 1 bath • 899 ft²
2 bedroom terraced house for sale in Church Street, Longframlington, Morpeth, NE65 — £200,000 • 2 bed • 1 bath • 836 ft²
3 bedroom terraced house for sale in Jobling Crescent, Morpeth, NE61 — £150,000 • 3 bed • 1 bath • 686 ft²
2 bedroom semi-detached house for sale in Wordsworth Cottage West, Longframlington, Morpeth, Northumberland, NE65 — £195,000 • 2 bed • 1 bath • 915 ft²
4 bedroom detached house for sale in Wilding Place, Longhorsley, Morpeth, NE65 — £490,000 • 4 bed • 2 bath • 1764 ft²


















