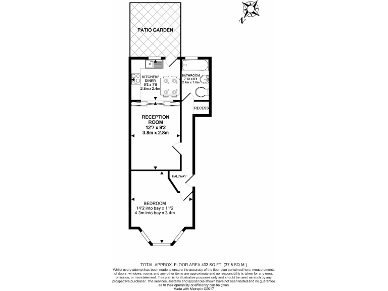
Ground-floor one-bedroom with private garden
This ground-floor one-bedroom apartment sits in a well-maintained Victorian terrace and comes with a private garden and a long lease with a share of the freehold. The open-plan living/kitchen benefits from original timber floors, high internal windows and natural light; the layout suits a single occupant or couple seeking an affordable central London base. Quiet, tree-lined street location is only minutes from Holloway Road and Seven Sisters Road, with excellent public transport and local shops close by.
The flat is presented in lived-in condition and will suit buyers wanting a home that needs only modest cosmetic updating rather than a full refurbishment. Broadband speeds are very slow locally and the property is in an area with higher deprivation scores; purchasers should factor in potential connectivity improvements and ongoing neighbourhood considerations. Council tax is described as affordable.
Practical benefits include chain-free sale, share of freehold, and a small private garden — a rare find at this size and price in the area. Room sizes are compact (total about 403 sq ft) so buyers should expect a modest footprint and limited storage. The property is straightforward to view and represents a sensible entry into the N7 market for first-time buyers or investor buyers seeking a tenant-ready central London flat with scope for value through light updating.







































