**Standout Features:**
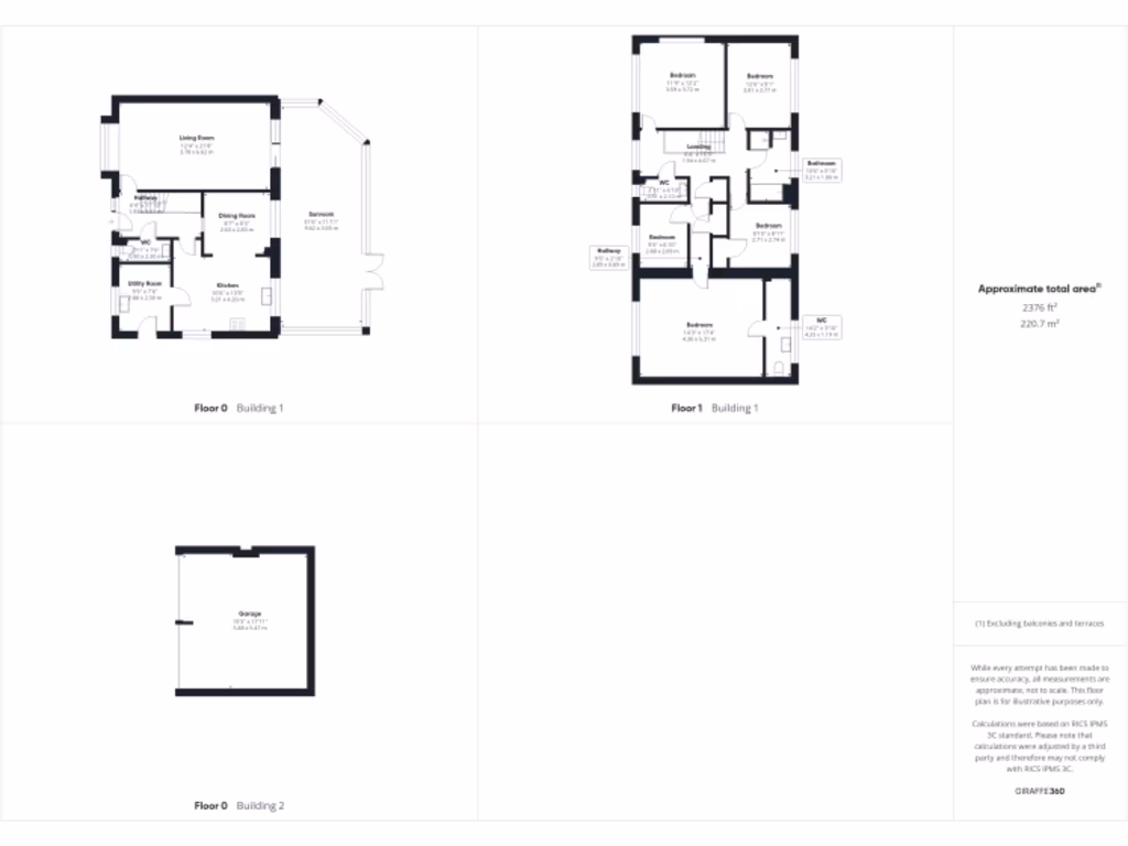
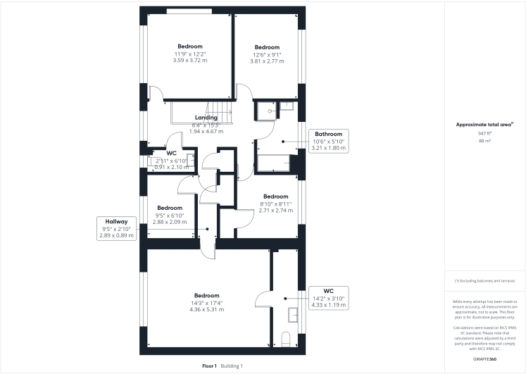
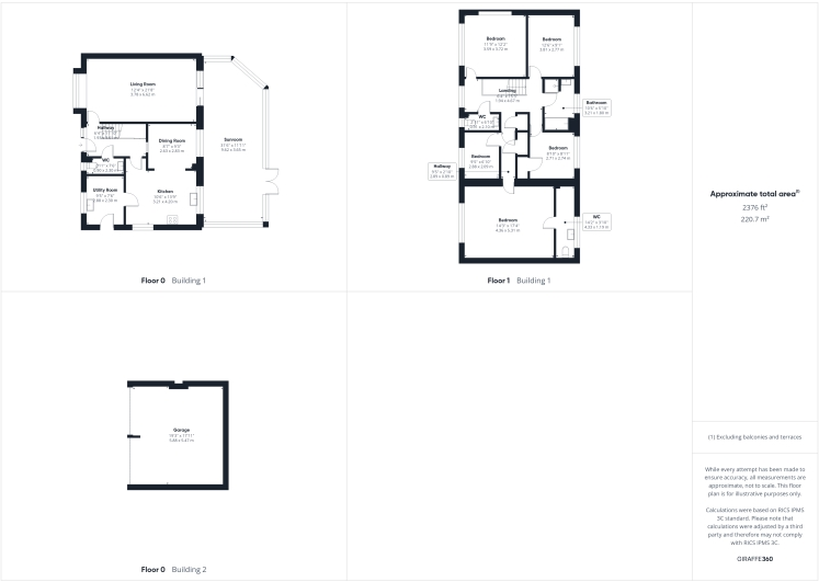
- **Spacious Accommodation**: 5 well-sized bedrooms and 3 bathrooms
- **Private Driveway**: Set in a tranquil village setting with exclusive access
- **Double Garage & Utility Room**: Ample storage and parking options
- **Large Kitchen & Conservatory**: Perfect for entertaining and family gatherings
- **Garden**: Generous, well-maintained garden space
**Potential Concerns:**
- Property is in an area with above-average crime rates
- Council tax rated as expensive
Nestled at the end of a serene private driveway in the charming village of Ackworth, this spacious five-bedroom detached home offers unparalleled comfort and seclusion, ideal for families seeking a peaceful retreat. It features a large driveway, a double garage, and a generous garden, surrounded by mature hedges, providing a perfect sanctuary for children to play or for hosting gatherings. The home boasts a large kitchen, a bright conservatory, and spacious living areas filled with natural light, making it perfect for both relaxation and entertaining.
While the property holds immense potential, it is essential to note that it is located in an area with above-average crime rates, and the council taxes are on the higher side. However, with its proximity to highly-rated schools, local amenities, and tranquil village surroundings, this home represents an excellent opportunity for families or investors looking to secure a valuable property in a sought-after location. Don’t miss your chance to make this inviting home your own—properties like this don’t stay on the market for long!
5 bedroom detached house for sale in Meadow Bank, Ackworth, Pontefract, WF7 — £775,000 • 5 bed • 2 bath • 2078 ft²
4 bedroom detached house for sale in Rigg Lane, Pontefract, WF7 — £385,000 • 4 bed • 1 bath • 1242 ft²
4 bedroom detached house for sale in Station Road, Ackworth, Pontefract, West Yorkshire, WF7 — £365,000 • 4 bed • 2 bath • 1606 ft²
4 bedroom semi-detached house for sale in Parkers Way, Ackworth, Pontefract, West Yorkshire, WF7 — £330,000 • 4 bed • 3 bath • 1691 ft²
6 bedroom detached house for sale in Westwinds, Ackworth, WF7 — £650,000 • 6 bed • 3 bath • 2597 ft²
4 bedroom detached house for sale in Langdale Drive, Low Ackworth, WF7 — £340,000 • 4 bed • 2 bath • 1263 ft²






















































































































































