RM12 5EY - 3 bedroom terraced house for sale in Peregrine Walk, Hornch…

View on Property Piper

3 bedroom terraced house for sale in Peregrine Walk, Hornchurch, RM12

Summary - 25, PEREGRINE WALK, HORNCHURCH RM12 5EY

3 bed 1 bath Terraced

**Standout Features:**
- Three bedrooms with generous space
- Spacious reception room and modern kitchen/dining area
- Landscaped south-east facing rear garden
- Detached garage with electric door
- Underfloor heating in kitchen
- Well-presented throughout
- Close to local schools and amenities
- Low crime area

**Concerns:**
- Small plot size
- No insulation in cavity walls (assumed)

Nestled in a tranquil walkway just 0.6 miles from Elm Park Station, this beautifully presented three-bedroom terraced house is perfect for first-time buyers or small families. Enjoy an inviting reception area with a charming bay window and a contemporary kitchen/dining zone featuring underfloor heating, ample storage, and modern finishes. French doors lead to a well-maintained 49 ft south-east facing garden, complete with a patio area, ideal for outdoor entertaining or family gatherings.

Upstairs, you will find three light-filled bedrooms, including a spacious principal room with built-in storage—versatile enough to accommodate a home office or additional guest room. The property is complete with a modern family bathroom and separate W/C. While the property does require minor updates, the potential is significant, making it a great investment for those looking to create their dream living space. With low crime rates, excellent broadband speeds, and proximity to reputable schools, this home offers comfort and security in a community-focused neighbourhood. Seize this opportunity—properties like this don’t last long!

Property Details

Image Descriptions

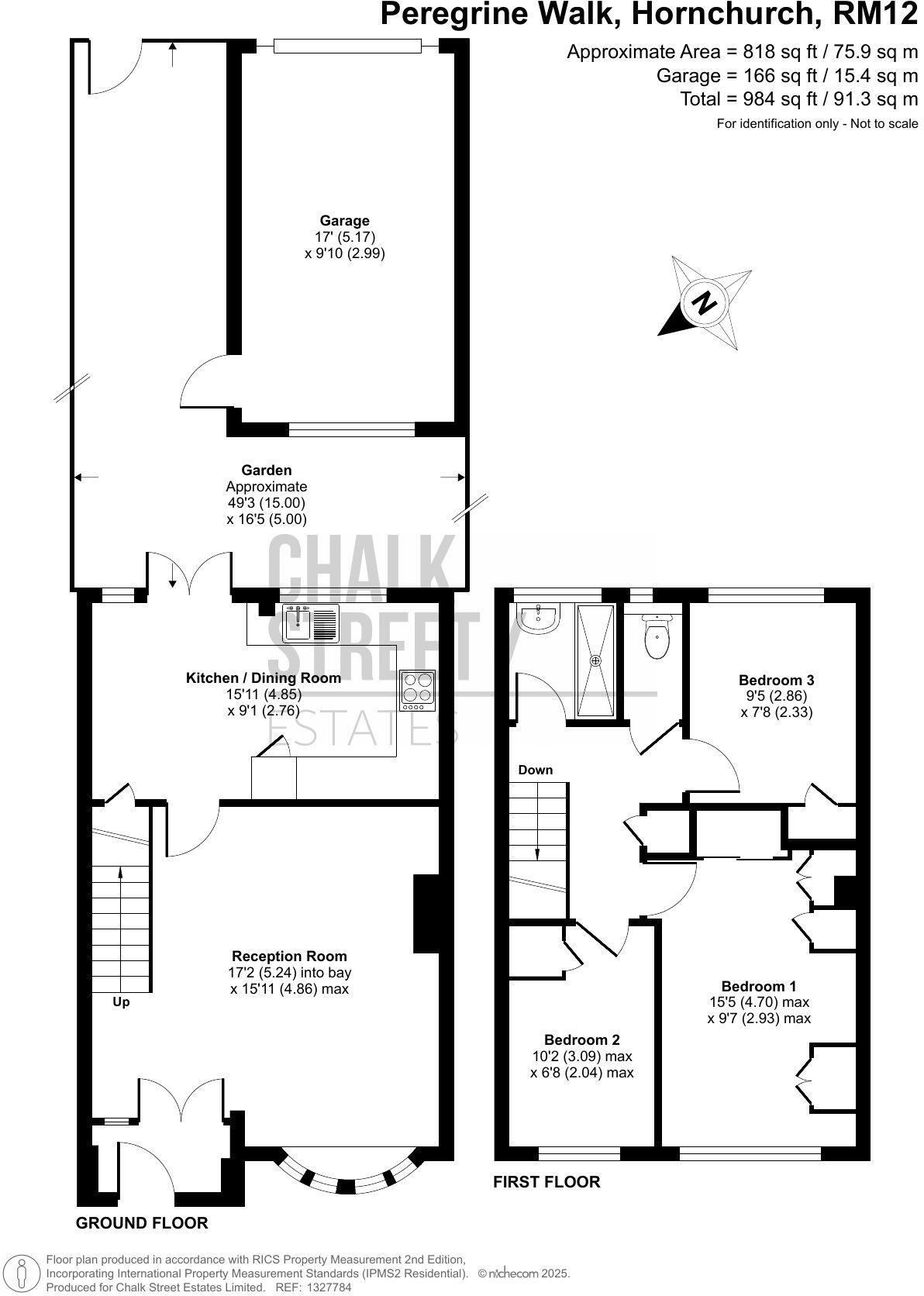
Floorplan Description

Rooms

Textual Property Features

Detected Visual Features

EPC Details

Nearby Schools

Nearest Bars And Restaurants

,,,,}

Nearest General Shops

,,}

Nearest Grocery shops

,,}

Nearest Supermarkets

,,}

Nearest Religious buildings

,,}

Nearest Medical buildings

,,,}

Nearest Airports

,}

Nearest Leisure Facilities

,,,,}

Nearest Tourist attractions

,,}

Nearest Train stations

,,,,}

Nearest Bus stations and stops

,,,,}

Nearest Hotels

,,}

Tags

Local Market Stats

Meta

High Res Images

Compatible Images

Low res Images

Thumbnails

Raw Images

High Res Floorplan Images

Compatible Floorplan Images

Low res Floorplan Images

FloorplanImages Thumbnail

Raw Floorplan Images