Converted Victorian warehouse close to river and city centre with energy-efficient heating and secure allocated space.
High ceilings and large sash windows, strong industrial character
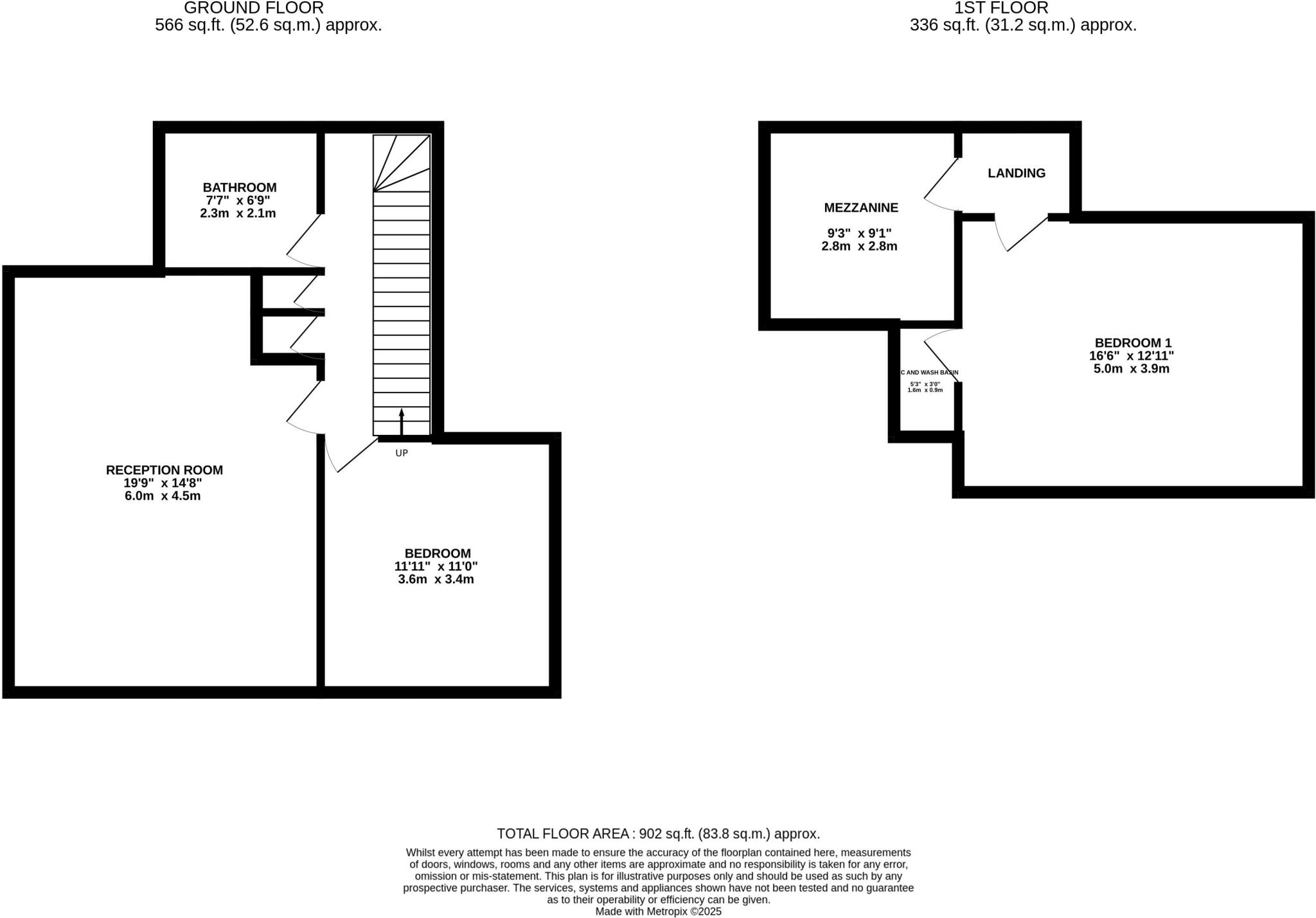
Set within The Throwing House, this two-bedroom duplex combines Victorian industrial character with contemporary comforts. High ceilings, large sash windows and exposed brick deliver strong visual appeal and generous internal space (approximately 1,634 sq ft). The fitted kitchen has composite worktops and integrated appliances, and the master bedroom includes an ensuite shower room.
Practical running costs are helped by an air source heat pump and high-speed broadband is provided via leased lines included in the service. A designated off-street parking space is included and the development has on-site cameras and a 24-hour security call-out service for added reassurance.
Important facts: the property is leasehold with a 999-year lease from 2025 and an average service charge of around £1,200 per year (lease information and charges should be checked). The location places you a short walk from the River Severn, the canal basin and Worcester city centre for shops, bars and restaurants.
Considerations: the wider area scores as very deprived with recorded high local crime levels and a cosmopolitan, student-oriented neighbourhood profile. Buyers seeking a quieter suburban setting may find this location lively; check suitability if you need quieter surroundings or are concerned about resale to certain buyer groups.
2 bedroom apartment for sale in Flat 5, Throwing House, Princes Drive, Worcester, Worcestershire, WR1 2AB, WR1 — £285,000 • 2 bed • 2 bath
2 bedroom apartment for sale in The Throwing House, Princes Drive, Worcester, Worcestershire, WR1 2AB, WR1 — £250,000 • 2 bed • 2 bath
2 bedroom apartment for sale in Portland Street, Worcester, Worcestershire, WR1 — £220,000 • 2 bed • 2 bath • 661 ft²
2 bedroom apartment for sale in Apartment 30, Albion Mill, Portland Street, Diglis, Worcester. WR1 2NY, WR1 — £240,000 • 2 bed • 2 bath • 955 ft²
2 bedroom flat for sale in Bath Road, Worcester, Worcestershire, WR5 — £210,000 • 2 bed • 2 bath • 647 ft²
2 bedroom apartment for sale in Middle Street, Worcester, WR1 — £220,000 • 2 bed • 2 bath • 1147 ft²














































































































