Chain-free with vacant possession available immediately
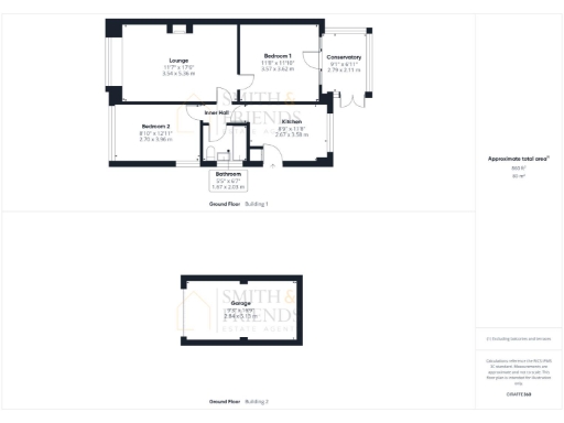
Vacant and chain-free, this semi-detached bungalow on Northwold Close offers easy, single-level living in a popular Fens Estate location. The layout includes a generous front lounge, two double bedrooms and a rear conservatory that adds light and usable space. Gas central heating and uPVC double glazing are already in place, and the property is offered freehold with immediate vacant possession.
Outside, a long driveway leads to a single garage and provides useful off-street parking. The enclosed rear garden backs onto Fens Primary School playing fields, giving a private, green outlook while also meaning occasional school-related noise at peak times. Front and rear gardens are well maintained and low effort — suitable for buyers who want outside space without heavy upkeep.
Internally the property presents in largely original mid‑20th century condition with dated decor and carpeting in places; it will suit someone happy to modernise kitchen, bathroom and finishes to taste. Room sizes are comfortable rather than expansive (total area around 850–860 ft²), making the bungalow well suited to downsizers, small households or buyers seeking a manageable, single-storey home.
Local amenities and transport links are close by, with good mobile and broadband connectivity and low council tax. Viewing is recommended to appreciate the plot, garage and conservatory extension — practical benefits that support straightforward, low-maintenance living or modest refurbishment for added value.



















































































