Affordable starter home with large garden and excellent transport links.
No onward chain — quick completion possible
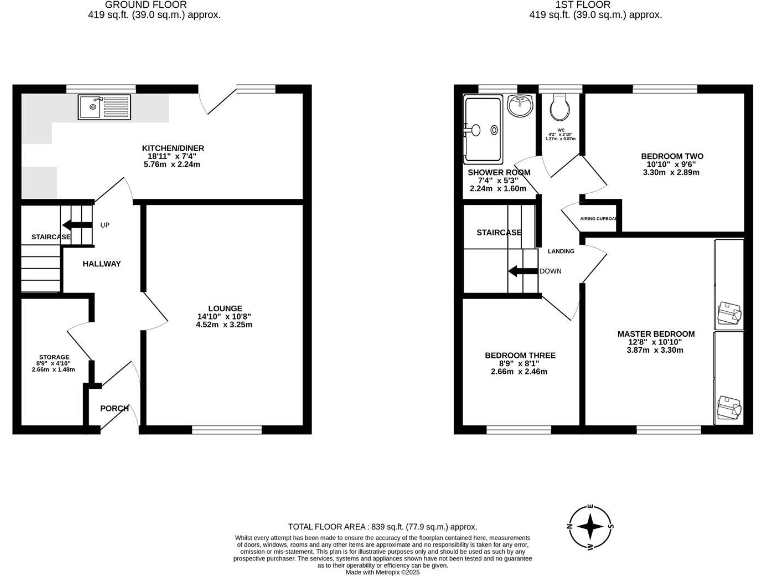
A no-chain three-bedroom terraced home offering an accessible step onto the property ladder in Bamber Bridge. The house feels bright inside thanks to a large front window and a rear kitchen/diner that opens onto a generous garden — useful for young families or buyers who want outside space.
Practical comforts include mains gas central heating, double glazing and an EPC C rating. The property’s footprint of about 839 sq ft provides a conventional layout with a useful storage room and integrated wardrobe in the master bedroom, making daily living straightforward.
Buyers should note the location is in a deprived area with higher local crime and a medium flood risk; on-street parking only. The home dates from the early 20th century and shows scope for cosmetic updating and energy improvements (cavity walls assumed uninsulated). These factors are reflected in the price and make the house suitable for first-time buyers or investors wanting to add value.
Local amenities and transport are strong selling points: shops, schools and a nearby train station are within easy reach, and the M6/M61 links make commuting simple. Early viewing is recommended for those prioritising affordability, outdoor space and good travel connections, while accepting some maintenance and upgrade work may be required.
3 bedroom terraced house for sale in Dean Street, Bamber Bridge, Preston, Lancashire, PR5 — £135,000 • 3 bed • 1 bath • 807 ft²
3 bedroom end of terrace house for sale in Brindle Road, Bamber Bridge, Preston, Lancashire, PR5 — £190,000 • 3 bed • 1 bath • 1227 ft²
3 bedroom semi-detached house for sale in Longbrook Avenue, Bamber Bridge, Preston, Lancashire, PR5 — £155,000 • 3 bed • 1 bath • 677 ft²
3 bedroom detached house for sale in Fourfields, Bamber Bridge, Preston, PR5 — £245,000 • 3 bed • 1 bath • 947 ft²
2 bedroom terraced house for sale in Mounsey Road, Bamber Bridge, Preston, Lancashire, PR5 — £115,000 • 2 bed • 1 bath • 755 ft²
3 bedroom terraced house for sale in Aspenwood Close, Bamber Bridge, PR5 — £169,950 • 3 bed • 1 bath • 852 ft²














































































