Chain-free one-bed with garden and strong transport links, ideal for first buyers..
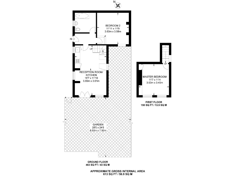
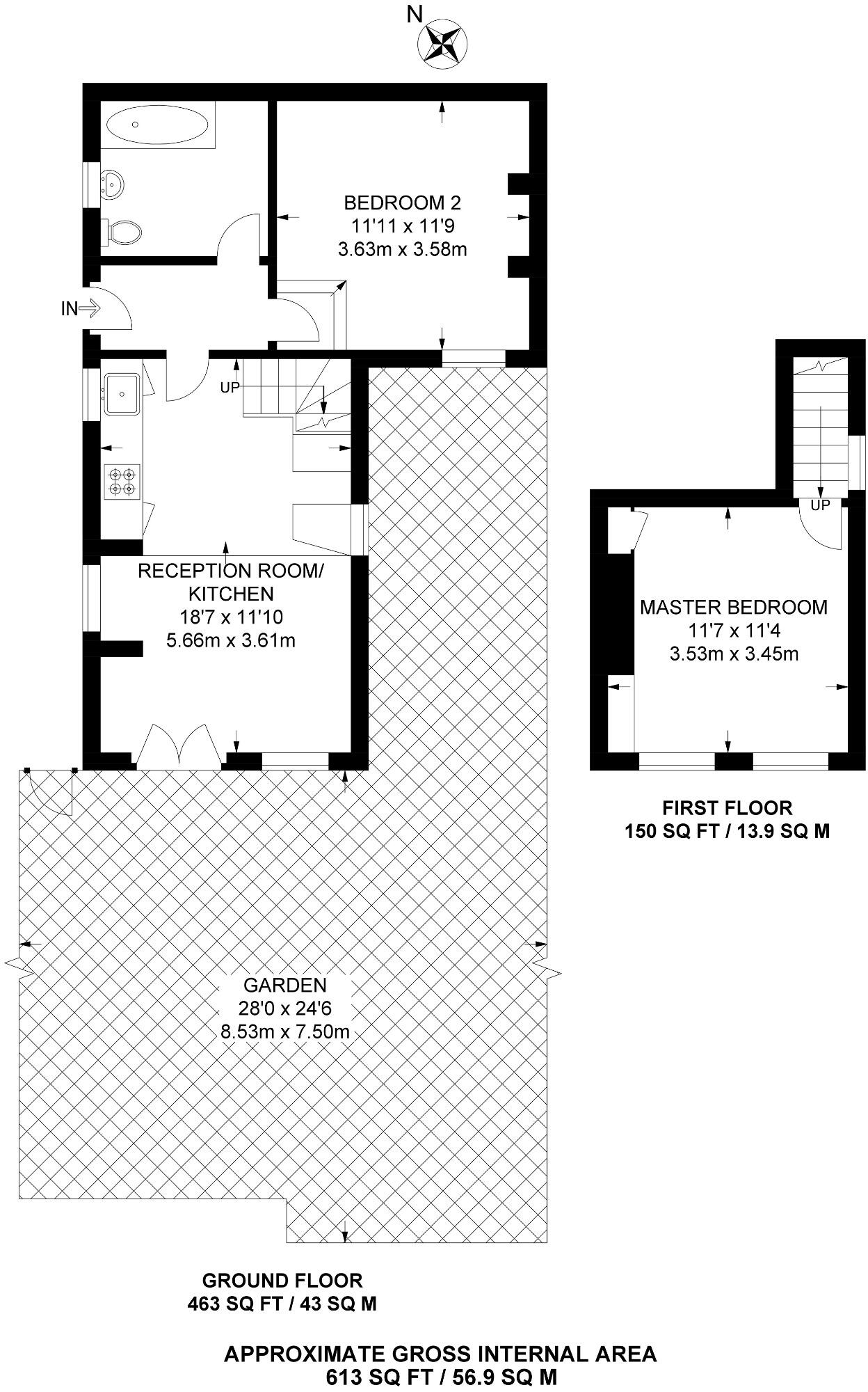
- Chain-free ground-floor flat with private garden and split-level layout
- Share of freehold with circa 951 years remaining on the lease
- One bedroom plus a second small room suitable for study or storage
- Off-street parking available on a first-come, first-served basis
- Solid brick Victorian build; likely lacking wall insulation
- Service charges ad hoc; building insurance cost not yet confirmed
- Compact 613 sq ft — average-sized rooms, potential to reconfigure
- Close walk to Shortlands station, village amenities and good schools
Set on a quiet Shortlands street, this ground-floor, one-bedroom split-level flat offers immediate move-in potential and a private garden. The property combines Victorian character with an open-plan living/kitchen and a useful second room suitable for a study or storage.
The flat is sold chain-free with a long share of freehold (circa 951 years) and benefits from off-street parking on a first-come, first-served basis. Shortlands village amenities and Shortlands station are a short walk away, making commutes into central London straightforward.
Practical buyers should note the building’s age and construction: solid brick walls (likely no insulation) and unspecified dates for glazing and services. Service charges are ad hoc and building insurance costs are to be confirmed. The layout and condition present clear scope to add value through targeted refurbishment or insulation upgrades.
This property will suit a first-time buyer seeking a convenient transport link and a low-entry ownership with long lease security, or an investor looking for a compact rental close to good schools and rail connections. Expect modest living space but strong location-driven demand.
1 bedroom flat for sale in Mays Hill Road, Shortlands, Bromley, BR2 — £190,000 • 1 bed • 1 bath • 355 ft²
1 bedroom ground floor flat for sale in 15 Beckenham Grove, Bromley, BR2 — £245,000 • 1 bed • 1 bath • 457 ft²
1 bedroom flat for sale in Station Road, Shortlands, Bromley, BR2 — £240,000 • 1 bed • 1 bath • 589 ft²
1 bedroom flat for sale in Beckenham Lane, Bromley, BR2 0DN, BR2 — £290,000 • 1 bed • 1 bath • 659 ft²
2 bedroom flat for sale in Beckenham Lane, Bromley, BR2 — £300,000 • 2 bed • 1 bath • 757 ft²
1 bedroom flat for sale in Beckenham Lane, BR2 — £202,500 • 1 bed • 1 bath • 559 ft²










































