**Standout Features:**
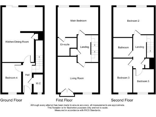
- Spacious townhouse with 4-5 bedrooms
- Modern kitchen/dining room and living spaces
- Landscaped rear garden with low maintenance patio
- Garage and off-road parking
- Attractive views overlooking fields
- Conveniently located near schools and amenities
**Concerns:**
- Located in an area with high crime rates
- Average-sized overall space for a townhouse
- Community schools have varying ratings
Discover this well-presented and spacious townhouse ideally situated in the desirable West Wick development, perfect for families seeking comfort and convenience. This modern home spans three floors, offering four to five bedrooms, two bathrooms, and inviting living spaces. Enjoy your mornings in the contemporary kitchen/dining room, and relax in the beautifully landscaped garden overlooking picturesque fields. The property also features a garage and off-road parking.
With excellent local primary and secondary schools just a stone's throw away, along with quick access to the M5 for commuters, this property blends suburban tranquility with modern urban living. Although the crime rate is higher in the area, the home itself offers a welcoming environment and future potential for renovations or personal touches. Don’t miss the chance to view this family-friendly haven at an attractive price of £295,000!



















































































