Move-in ready park home with garage and scenic rural views.
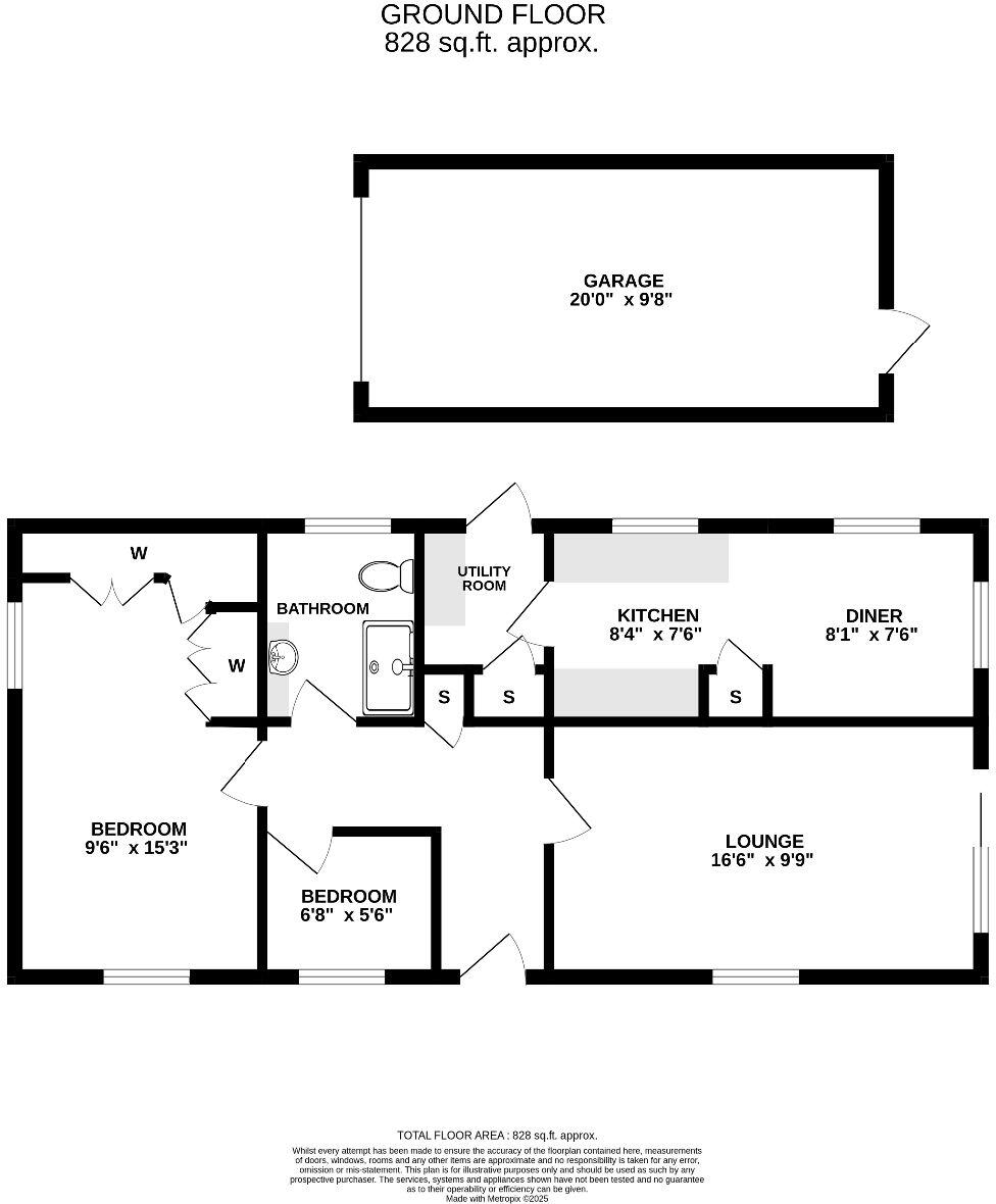
Two bedrooms, single-storey living, c.828 sq ft
This well-presented two-bedroom park home sits on Vine Tree Park with open countryside views and low-maintenance outdoor space. The single-storey layout offers practical living across about 828 sq ft, with a bay-fronted lounge, separate kitchen/diner, two bedrooms and a refurbished shower room. Recent updates include new carpets, a new heating system, external insulation and an electric garage door, so the home is largely move-in ready.
Comfortable for downsizers or someone seeking a low-upkeep second home, the plot is compact with a paved courtyard and raised deck for outdoor seating rather than extensive garden. Allocated parking, a detached garage and visitors’ spaces on-site add convenience; a regular bus service runs close to the park entrance and Ross town centre is roughly 1.2 miles away.
Important practical points: the property is leasehold and chain-free, with a high ground rent of approximately £2,148.84 per year (£179.07 pcm). Plot sizes on established parks are limited and outdoor amenity is modest, so buyers who need larger gardens or private land should note the restriction.
Overall this is a tidy, newly renovated park home offering single-level living, strong energy improvements from external insulation, and attractive countryside views. It will suit retirees, downsizers or buyers wanting a low-maintenance base near Ross-on-Wye, provided they accept leasehold costs and modest outside space.
2 bedroom retirement property for sale in Vine Tree Park, Tudorville, Ross-on-Wye, Herefordshire, HR9 — £120,000 • 2 bed • 1 bath • 474 ft²
2 bedroom park home for sale in Cottage Park, Ross-on-Wye, HR9 — £150,000 • 2 bed • 1 bath • 581 ft²
2 bedroom park home for sale in Cottage Park, Ross-on-Wye, HR9 — £150,000 • 2 bed • 1 bath • 492 ft²
2 bedroom park home for sale in Cottage Park, Ross-on-Wye, HR9 — £199,950 • 2 bed • 1 bath • 783 ft²
2 bedroom park home for sale in Yew Tree Park, Peterstow, Ross-on-Wye, HR9 — £180,000 • 2 bed • 2 bath • 713 ft²
2 bedroom park home for sale in Yew Tree Park, Ross-on-Wye, HR9 — £215,000 • 2 bed • 1 bath • 570 ft²






























































































