Contemporary one-bed with two outdoor spaces and long lease.
Private ground-floor patio and separate bedroom terrace
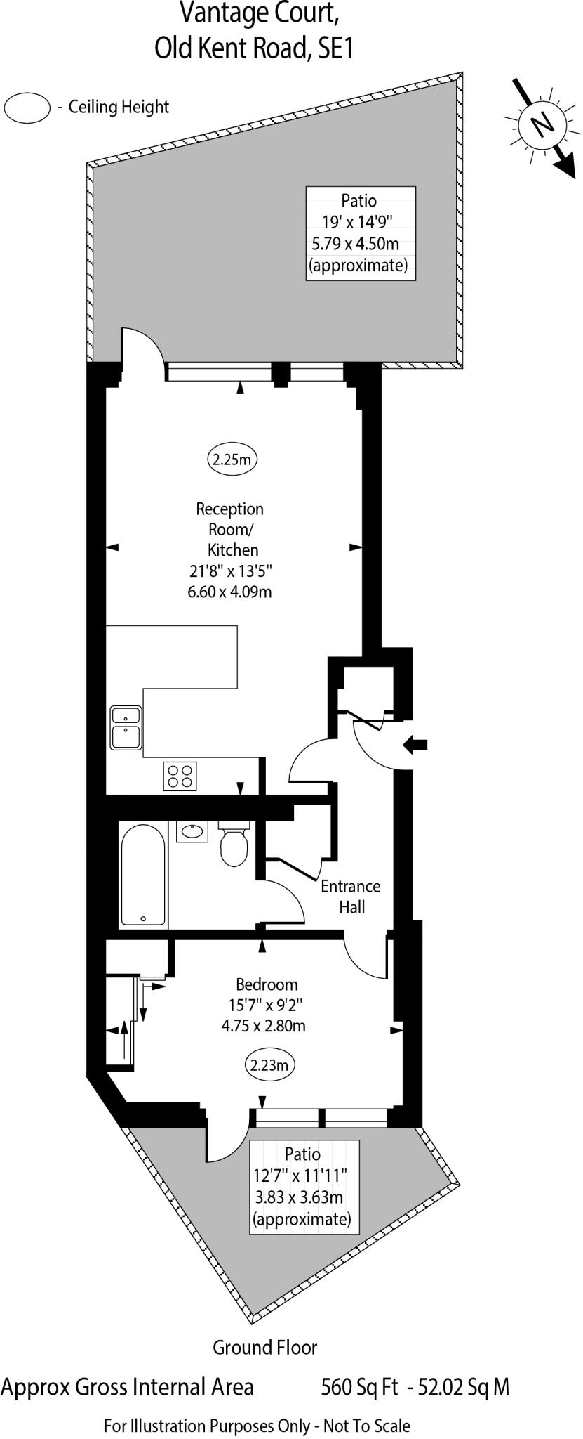
A bright, contemporary one-bedroom ground-floor apartment offering about 560 sq ft of practical living space and two private outdoor areas — a patio and a larger terrace accessed from the bedroom. The open-plan kitchen/reception features high-gloss cabinets, integrated appliances and French doors that open to the patio, creating good indoor/outdoor flow for socialising or relaxing.
The double bedroom includes fitted wardrobes and direct terrace access, giving a private retreat with fresh-air space. The bathroom is fully tiled with a modern three-piece suite. The property comes with a new 999-year lease and the remaining NHBC warranty, providing long-term tenure security for a first-time buyer.
Practical considerations: heating is by electric room heaters (no gas central heating), and broadband speeds are average. Ground rent is £500 (described as average). The location offers excellent transport links to London Bridge and the City, plus local shops and Burgess Park nearby — useful for commuting and weekend outdoor time.
Buyers should note the local area records higher-than-average crime levels. The flat is well presented and move-in ready, but potential purchasers who prioritise low running costs or gas central heating should factor in the electric heating and likely higher energy bills when comparing homes.
1 bedroom flat for sale in Boundary Lane, Burgess Park, SE17 — £385,000 • 1 bed • 1 bath • 512 ft²
1 bedroom flat for sale in 217 Tabard Street, London, SE1 4UR, SE1 — £454,000 • 1 bed • 1 bath • 563 ft²
1 bedroom flat for sale in Leyland Court, Sumner Road, Peckham, London, SE15 — £355,000 • 1 bed • 1 bath • 670 ft²
1 bedroom apartment for sale in Gloucester Court, Rowcross Street, SE1 — £375,000 • 1 bed • 1 bath • 560 ft²
1 bedroom flat for sale in Bermondsey Street, London, SE1 — £565,000 • 1 bed • 1 bath • 491 ft²
1 bedroom flat for sale in Leyland Court, Sumner Road, London, SE15 — £345,000 • 1 bed • 1 bath • 674 ft²






























































