Large freehold retail with planning consent for a four-bedroom home — auction sale..
Freehold high-street retail with attached residential home
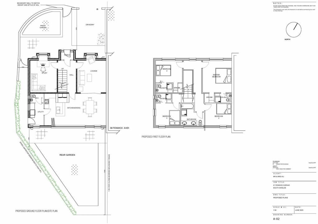
A rare high-street freehold offering with mixed-use potential in South Shields. The main house extends over three floors and is presented with six bedrooms, two reception rooms, a fitted kitchen, en-suite and family bathroom — providing substantial living space and scope for multi-generational occupancy. An attached salon/workspace comes with planning permission to replace it with a four-bedroom home, or alternatively the space can be scaled down, retained as commercial use, or converted to other purposes.
The plot includes a south-facing garden, garage and ample off-street parking. The overall floor area is very large (about 3,746 sq ft), giving space for significant refurbishment or subdivision to increase rental yield or capital value. Good transport links are close by — Metro station and local bus routes — and local broadband and mobile signals are strong.
Important considerations: the property will be sold at auction and is located in an area of above-average crime and economic deprivation, which may affect mortgage options, insurance and tenant demand. Buyers should allow for renovation and conversion costs when budgeting; a professional inspection has not been carried out as part of this listing.
High street retail property for sale in Westoe Road, South Shields, Tyne and Wear, NE33 3PF, NE33 — £165,000 • 1 bed • 1 bath • 1643 ft²
High street retail property for sale in Frederick Street, South Shields, Tyne and Wear, NE33 5EA, NE33 — £125,000 • 1 bed • 1 bath • 1650 ft²
High street retail property for sale in Horsley Hill Road, South Shields, NE33 — £80,000 • 1 bed • 1 bath • 441 ft²
High street retail property for sale in Horsley Hill Road, Westoe, South Shields, Tyne and Wear, NE33 3ER, NE33 — £80,000 • 1 bed • 1 bath • 441 ft²
High street retail property for sale in Imeary Street, South Shields, Tyne and Wear, NE33 4EG, NE33 — £50,000 • 1 bed • 1 bath • 678 ft²
3 bedroom terraced house for sale in Ramsey Street, High Spen, NE39 — £90,000 • 3 bed • 2 bath • 1747 ft²


































































































































