Two en-suite bedrooms and private courtyard near countryside walks.
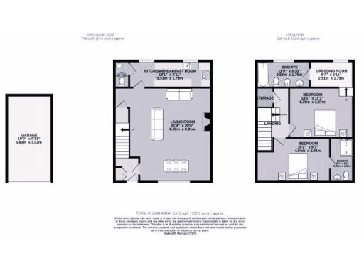
- Two bedrooms, each with its own en-suite bathroom
- Spacious living room and separate kitchen/breakfast area
- Private paved courtyard garden, low-maintenance outdoor space
- Allocated off-street parking space included
- Share of freehold with 999-year lease from 2002
- Service charge approx. £1,800pa; ground rent £150pa
- Broadband speeds reported as slow locally
- Some interior decor is dated and may need updating
This two-bedroom terraced home in Bretby sits in a peaceful, semi-rural setting and offers surprisingly generous internal space (approx. 1,135 sq ft) across two floors. The living room is roomy and light, the kitchen includes a breakfast area, and both bedrooms have their own en-suite bathrooms — a practical layout for sharers or those wanting uncomplicated rental potential.
Outside, a private paved courtyard provides a low-maintenance outdoor retreat, and an allocated parking space adds everyday convenience. The property benefits from a share of freehold, a very long 999-year lease from 2002, and mains gas central heating via a boiler and radiators.
Practical costs to note: the property attracts a service charge of around £1,800 per year and a small ground rent of £150 per year. Broadband speeds are reported as slow in the area, and some internal decor is dated and may need refreshment to modernise the living spaces.
Overall this property will suit a first-time buyer seeking space, character and low-maintenance outdoor living, or an investor targeting straightforward lettings in a very affluent area with good local schooling and countryside access. Viewing is recommended to assess condition and layout in person.
3 bedroom mews property for sale in Carnarvon Court, Bretby, DE15 — £290,000 • 3 bed • 2 bath • 983 ft²
3 bedroom apartment for sale in Bretby Hall Bretby, Burton-on-Trent, Staffordshire DE15 0QQ, DE15 — £450,000 • 3 bed • 2 bath • 3368 ft²
4 bedroom mews property for sale in Carnarvon Court, Bretby Park, DE15 — £400,000 • 4 bed • 2 bath • 1238 ft²
5 bedroom detached house for sale in Bretby Lane, Bretby, Burton-On-Trent, Derbyshire, DE15 0QN, DE15 — £750,000 • 5 bed • 2 bath • 2258 ft²
2 bedroom apartment for sale in Bretby, Burton-On-Trent DE15 0QQ, DE15 — £240,000 • 2 bed • 1 bath • 990 ft²
4 bedroom semi-detached house for sale in Main Street, Repton, Derby, DE65 — £380,000 • 4 bed • 2 bath • 1034 ft²






























































