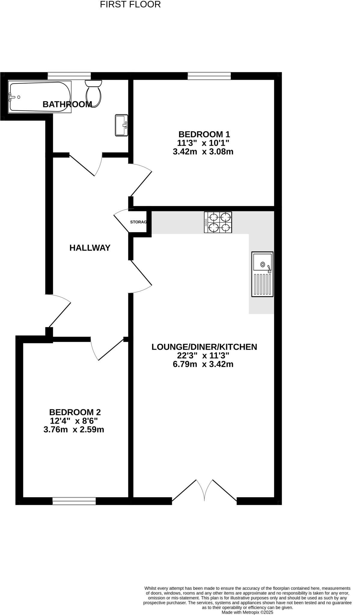
Two double bedrooms in an open-plan layout
This two-bedroom leasehold apartment on Frimley Road offers compact, modern living ideal for a first-time buyer or buy-to-let investor. The open-plan lounge/diner/kitchen creates a sociable heart to the home, while the outside terrace adds valuable outdoor space in a town-centre location. One allocated off-street parking space is included and the flat is offered with no onward chain.
Practical details are straightforward: the lease has around 112 years remaining and the EPC is C (77). The accommodation is modest at about 470 sq ft, so rooms are best suited to pared-back furniture and efficient layouts. Heating is by electric room heaters and double glazing is in place, but the building appears to have cavity walls with no installed insulation, which may affect running costs.
The surrounding area provides clear convenience: Camberley town centre amenities, shops, theatres and public transport are within easy reach. That convenience is offset by local challenges — the neighbourhood records higher crime levels and the wider area shows indicators of deprivation, which should be weighed by buyers and investors when considering rental demand or resale prospects.
Overall this is a compact, contemporary apartment that will suit someone seeking a low-maintenance base close to transport and town amenities, or an investor targeting the local private-rent market. Viewings are advised to confirm space and condition for your intended layout or upgrade plans.











































