Tidy three-bed detached with garage, southwest garden and woodland views..
- Detached three-bedroom house built in 2017, freehold
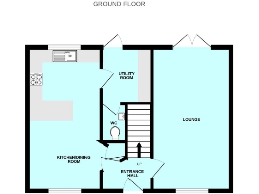
- Dual-aspect lounge with woodland views and French doors
- Open-plan kitchen/dining, separate utility and downstairs WC
- Master bedroom with ensuite; family bathroom on first floor
- Driveway, single garage with power and south-west rear garden
- Double glazing, gas central heating and wall-mounted boiler
- Small plot; garden is modest in size (low-maintenance)
- Area shows local deprivation indicators which may affect resale
A well-presented three-bedroom detached home built in 2017, quietly tucked away on Charlbury Drive with pleasant woodland views to the front. The house offers a bright dual-aspect lounge, a generous open-plan kitchen/dining space, separate utility and a useful downstairs cloakroom — all arranged for everyday family living. The master bedroom benefits from a fitted ensuite and two further bedrooms share a family bathroom.
Outside, the property has a driveway, single garage with power and lighting, and a south‑west facing rear garden with composite decking and a lawn — easy to maintain and good for afternoon sun. The accommodation is double-glazed and gas centrally heated from a wall-mounted boiler, and the home is offered freehold and move-in ready.
Practical strengths include fast broadband, excellent mobile signal and very low local crime, plus several nearby ‘Good’ rated primary and secondary schools. Note the plot is modest in size and the garden is small-to-average; this will suit buyers wanting low-maintenance outdoor space rather than large grounds. The wider area statistics indicate pockets of deprivation, which may affect longer-term resale dynamics in some parts of the postcode.
Overall this is a modern, sensible family home on a popular development — comfortable now and straightforward to adapt if you wish to personalise fittings or extend (subject to planning). For buyers prioritising a contemporary, low-maintenance detached house with parking, garage and good local amenities, this presents a practical option.
3 bedroom semi-detached house for sale in Saltram Meadow, Plymouth, PL9 — £280,000 • 3 bed • 2 bath • 937 ft²
3 bedroom detached house for sale in Charlbury Drive, Saltram Meadow, Plymouth, PL9 — £335,000 • 3 bed • 2 bath • 964 ft²
3 bedroom end of terrace house for sale in Killerton Lane, Saltram Meadow, Plymouth., PL9 — £275,000 • 3 bed • 2 bath • 859 ft²
4 bedroom detached house for sale in Saltram Meadow, Plymouth, PL9 — £350,000 • 4 bed • 2 bath • 1185 ft²
3 bedroom end of terrace house for sale in Killerton Lane, Plymouth, PL9 — £245,000 • 3 bed • 1 bath • 872 ft²
3 bedroom semi-detached house for sale in Killerton Lane, Plymstock, PL9 — £250,000 • 3 bed • 2 bath • 732 ft²






































































































