Secure, low‑maintenance one‑bedroom retirement flat with on‑site warden and communal gardens..
Warden‑assisted ground‑floor maisonette for over‑55s
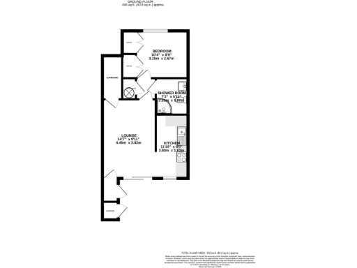
Open-plan lounge/kitchen with patio to communal gardens
Built-in wardrobes and useful additional storage
Chain-free sale — ready for a quick completion
Lease c.60 years remaining — lenders may refuse mortgages
Service charge £1,279.28pa; ground rent £379pa
Electric room heaters (no communal gas central heating)
EPC C (77) — energy efficient for electric heating
This well-kept ground-floor maisonette offers a secure, low-maintenance home for the over‑55s in a quiet Kempshott pocket of Basingstoke. The open-plan lounge and kitchen create a light, practical living area with sliding doors to a small patio and communal gardens — a pleasant spot for fresh air without garden upkeep.
The property is part of a warden‑assisted scheme with emergency pull cords and a secure entry system, providing reassuring support and peace of mind. Built-in wardrobes and additional storage keep the one bedroom uncluttered, while the accessible shower room suits daily independent living.
Important practical points: the flat uses electric room heaters (no communal gas), carries an EPC rating of C, and attracts an annual service charge and ground rent. Crucially, the lease is short (around 60 years remaining), which may restrict mortgage availability or value — buyers and their solicitors should check lender requirements and legal implications before committing.
This chain‑free maisonette will suit a buyer seeking a manageable, community‑oriented home with on-site support. It presents a straightforward move-in option, though buyers should factor in lease length and the ongoing service and ground rent costs.
1 bedroom apartment for sale in Kendal Gardens, Basingstoke, Hampshire, RG22 — £120,000 • 1 bed • 1 bath • 446 ft²
1 bedroom maisonette for sale in Kendal Gardens, Kempshott, RG22 — £130,000 • 1 bed • 1 bath • 482 ft²
1 bedroom retirement property for sale in Kendal Gardens, Basingstoke, RG22 — £120,000 • 1 bed • 1 bath • 442 ft²
1 bedroom bungalow for sale in Kendal Gardens, Basingstoke, RG22 — £180,000 • 1 bed • 1 bath • 429 ft²
2 bedroom apartment for sale in Gershwin Court, Basingstoke, RG22 — £115,000 • 2 bed • 1 bath • 551 ft²
1 bedroom retirement property for sale in Hillstead Court, Basingstoke, RG21 — £100,000 • 1 bed • 1 bath • 442 ft²














































