**Standout Features:**
- Prominent detached office building in a key location
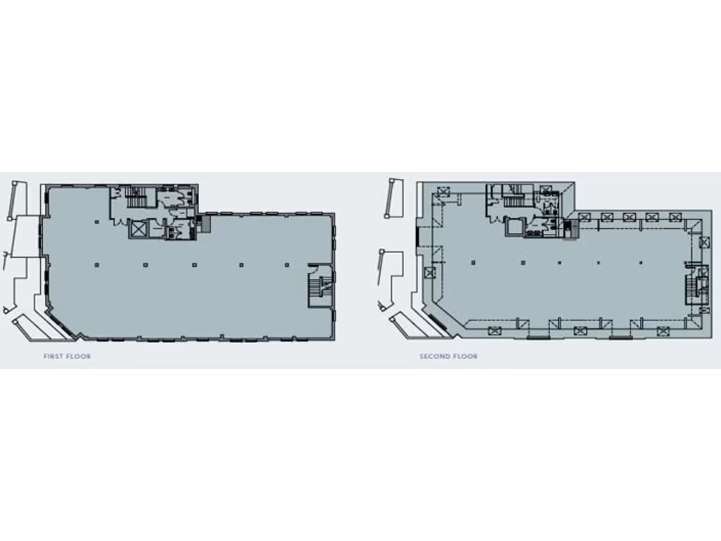
- Modern, open-plan layouts with excellent natural light
- Air conditioning and LED lighting throughout
- Recently upgraded facilities including a brand-new kitchen and meeting rooms
- Dedicated 1GB fiber line for high-speed connectivity
- Generates rental income from occupied first and second floors
- 31 car parking spaces available
**Summary:**
Discover this substantial office property at 11 The Avenue, Southampton, designed to meet the needs of modern businesses while providing an excellent investment opportunity. This striking three-story building boasts an impressive 12,469 square feet of flexible office space, bathed in natural light due to large, arched windows. The ground floor is currently vacant, perfect for businesses looking for a bespoke setup, while existing tenants on the upper floors provide an immediate income stream at a favorable rent of £20.00 per square foot.
Located conveniently with 31 car parking spaces and easy access to Southampton’s vibrant amenities, this property sits at the intersection of commerce and lifestyle. Future renovation or expansion potential makes it even more compelling for investors or businesses looking for long-term growth in a sought-after area. With significant traffic passing by daily and a blend of nearby residential and commercial properties, seize the opportunity to make a mark in this thriving location. A guide price of £2.4 million ensures that this unique offering won't last long—act fast to secure your future here!
 Office for sale in 11 The Avenue, Southampton, Hampshire, SO17 — POA • 1 bed • 1 bath • 12469 ft²
 Office for sale in 11 The Avenue, Southampton, Hampshire, SO17 — POA • 1 bed • 1 bath • 12469 ft² Office for sale in Charter Court, Third Avenue, Southampton, SO15 0JA, SO15 — POA • 1 bed • 1 bath • 12775 ft²
 Office for sale in Charter Court, Third Avenue, Southampton, SO15 0JA, SO15 — POA • 1 bed • 1 bath • 12775 ft² Office for sale in 14-15 Freemantle Business Centre, 152 Millbrook Road East, Freemantle, Southampton, SO15 1JR, SO15 — £280,000 • 1 bed • 1 bath • 1525 ft²
 Office for sale in 14-15 Freemantle Business Centre, 152 Millbrook Road East, Freemantle, Southampton, SO15 1JR, SO15 — £280,000 • 1 bed • 1 bath • 1525 ft² Office for sale in Oculis House, Eddystone Road, Southampton, SO40 3SA, SO40 — £1,000,000 • 1 bed • 1 bath • 4300 ft²
 Office for sale in Oculis House, Eddystone Road, Southampton, SO40 3SA, SO40 — £1,000,000 • 1 bed • 1 bath • 4300 ft² Office for sale in Lyon Street, Southampton, Hampshire, SO14 — £250,000 • 1 bed • 1 bath • 1213 ft²
 Office for sale in Lyon Street, Southampton, Hampshire, SO14 — £250,000 • 1 bed • 1 bath • 1213 ft² Office for sale in Unit 1 Station Industrial Park, Duncan Road, Park Gate, Southampton, Hampshire, SO31 — £625,000 • 1 bed • 1 bath • 4290 ft²
 Office for sale in Unit 1 Station Industrial Park, Duncan Road, Park Gate, Southampton, Hampshire, SO31 — £625,000 • 1 bed • 1 bath • 4290 ft²










































