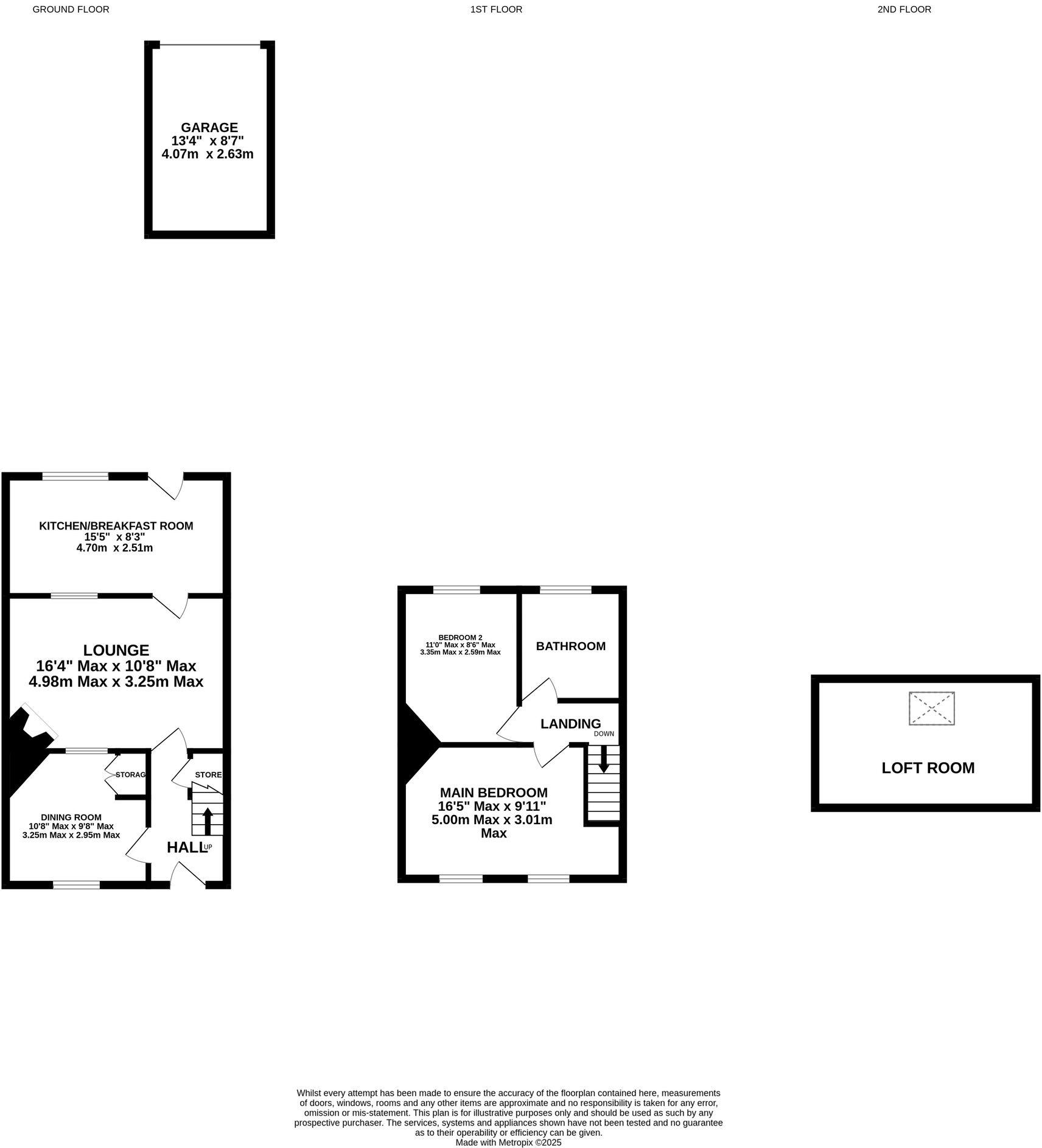
**Standout Features:**
- Victorian mid-terrace house in a desirable location
- Two spacious bedrooms and a 16ft lounge
- 15ft kitchen/breakfast room with modern amenities
- Off-road parking and a garage for added convenience
- Extensive rear garden with multiple sections
- Freehold property with chain-free status
- Low council tax band B and EPC rating of C
**Summary:**
Discover comfort and potential in this well-presented two-bedroom Victorian mid-terrace house located in the sought-after area of Itchen. The spacious 16ft lounge and 15ft modern kitchen/breakfast room provide ample room for relaxation and entertaining. Enjoy the benefits of off-road parking, a garage, and an extensive rear garden, perfect for enjoying sunny days or gardening endeavors.
Families will appreciate being within the catchment area for reputable schools, such as Ludlow Infant Academy, while Southampton's vibrant city center, with its diverse shopping and dining options, is just a short distance away. Convenient transport links, including nearby train stations and access to the M27, make commuting effortless.
While the property is in good condition, it does feature some areas that may require minor updates, such as the uninsulated cavity walls and original boiler. The loft space offers additional flexibility for potential expansion or storage. Seize the opportunity to own a charming home with substantial character and future potential—properties like this don’t stay on the market for long!
2 bedroom house for sale in Ludlow Road, Itchen, SO19 — £250,000 • 2 bed • 1 bath • 1017 ft²
2 bedroom terraced house for sale in Sholing Road, Southampton, Hampshire, SO19 — £245,000 • 2 bed • 2 bath • 892 ft²
3 bedroom house for sale in Ludlow Road, Itchen, SO19 — £250,000 • 3 bed • 1 bath • 709 ft²
2 bedroom terraced house for sale in Warren Crescent, Southampton, Hampshire, SO16 — £220,000 • 2 bed • 1 bath • 677 ft²
2 bedroom house for sale in Ivy Dene, Sholing, SO19 — £230,000 • 2 bed • 1 bath • 516 ft²
2 bedroom terraced house for sale in Ludlow Road, Itchen, Hampshire, SO19 — £260,000 • 2 bed • 1 bath • 847 ft²


































































