Spacious private estate home with pool, garage and extensive gardens.
Around 8,000 sq ft of living accommodation
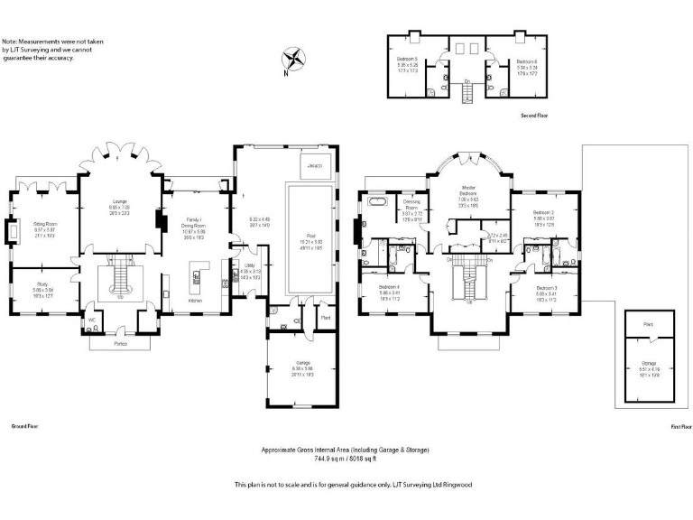
An exceptionally large six-bedroom detached house set on around 0.7 acres within the private Avon Castle estate. The property offers roughly 8,000 sq ft of living accommodation, including a grand reception hall, dual-aspect sitting room with fireplace, drawing room, study and a show-stopping kitchen/breakfast room with full-width bi-fold doors onto the rear garden.
The principal suite includes a dressing room and luxury en-suite; five further bedrooms all benefit from en-suite facilities across two floors. Leisure features include an indoor UV-filtered freshwater pool and sunken jacuzzi with bi-fold doors to the garden, plus extensive decking and mature landscaping that provide privacy and a strong indoor–outdoor flow.
Practical positives include an integral double garage, a sweeping in-and-out driveway with ample parking and close access to commuter routes, shops and highly regarded local schools. The home’s Neo-Georgian styling, high ceilings, oak flooring and bespoke staircase underline its quality and presence.
Buyers should allow for higher running costs and ongoing maintenance typical of a property of this scale: pool servicing and filtration systems, garden upkeep for the large plot, and a very expensive council tax band. The house’s size and secluded setting appeal to families or downsizers seeking privacy, space and high-end leisure facilities, but it will suit those prepared for the responsibilities and costs of a substantial home.
4 bedroom detached house for sale in Egmont Drive, Avon Castle Ringwood, Hampshire, BH24 — £1,195,000 • 4 bed • 4 bath • 2834 ft²
5 bedroom detached house for sale in Avon Avenue, Ringwood, St Ives, BH24 — £2,500,000 • 5 bed • 5 bath • 6000 ft²
5 bedroom detached house for sale in Avon Castle Drive, Ringwood, Dorset, BH24 — £3,850,000 • 5 bed • 5 bath • 8500 ft²
5 bedroom detached house for sale in Chapel Rise, Avon Castle, Ringwood, Hampshire, BH24 — £895,000 • 5 bed • 2 bath • 2300 ft²
8 bedroom detached house for sale in Avon Castle Drive, Ringwood, Dorset, BH24 — £2,750,000 • 8 bed • 5 bath • 6000 ft²
5 bedroom detached house for sale in Windmill Lane, Ringwood, Dorset, BH24 — £1,850,000 • 5 bed • 4 bath • 3947 ft²






























































































