Chain-free two-bed home with courtyard and allocated parking, minutes from Oakham centre.
Chain free and well maintained
Allocated off-street parking adjacent to property
New gas boiler 2024 with remaining guarantee
Full double glazing and new carpets throughout
Private low-maintenance walled courtyard garden
Small overall size — approx. 579 sq ft
New bath and shower installed 2023
Indoor mobile signal can be limited
A well-presented two-bedroom end-terrace close to Oakham town centre, offered chain-free and ready to move into. The home benefits from a newly installed gas boiler (2024) with remaining guarantee, full double glazing and new carpets throughout, making it a low-maintenance choice for first-time buyers or small families.
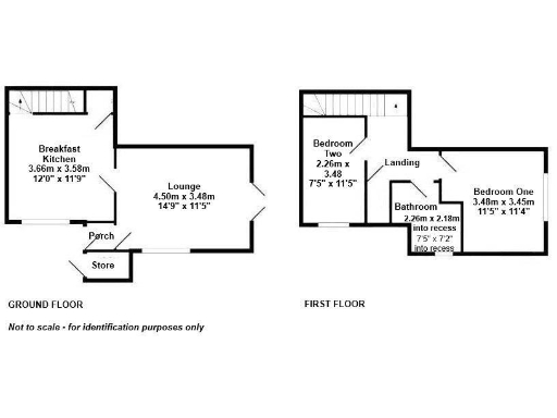
The ground floor has a bright lounge with French doors opening to a private, walled courtyard and a practical breakfast kitchen fitted with modern units and new integrated electric appliances. Upstairs provides a double bedroom, a good single bedroom and a bathroom with a new bath and shower (installed 2023). An integral store houses the boiler and useful extra storage.
Outside is a small gravelled front area and an attractively hard‑landscaped courtyard designed for minimal upkeep. The property includes one allocated parking space adjacent to the house and lies within easy walking distance of shops, schools and transport links in Oakham.
Please note the property is compact at approximately 579 sq ft, with limited outdoor space and a single allocated parking space. Mobile signal indoors can be variable and all services and appliances are sold as seen; buyers should satisfy themselves by inspection.
1 bedroom terraced house for sale in Ladywell, Oakham, LE15 — £162,500 • 1 bed • 1 bath • 329 ft²
2 bedroom terraced house for sale in Ladywell, Oakham, LE15 — £160,000 • 2 bed • 1 bath • 722 ft²
3 bedroom terraced house for sale in Graffham Drive, Oakham, Rutland, LE15 — £210,000 • 3 bed • 1 bath • 883 ft²
2 bedroom end of terrace house for sale in Ladywell, Oakham , LE15 — £185,000 • 2 bed • 1 bath • 740 ft²
2 bedroom end of terrace house for sale in Braunston Road, Oakham, Rutland, LE15 — £210,000 • 2 bed • 1 bath • 769 ft²
3 bedroom semi-detached house for sale in Plover Close, Oakham, LE15 — £220,000 • 3 bed • 1 bath • 915 ft²






















































