**Standout Features:**
- Victorian semi-detached garden flat
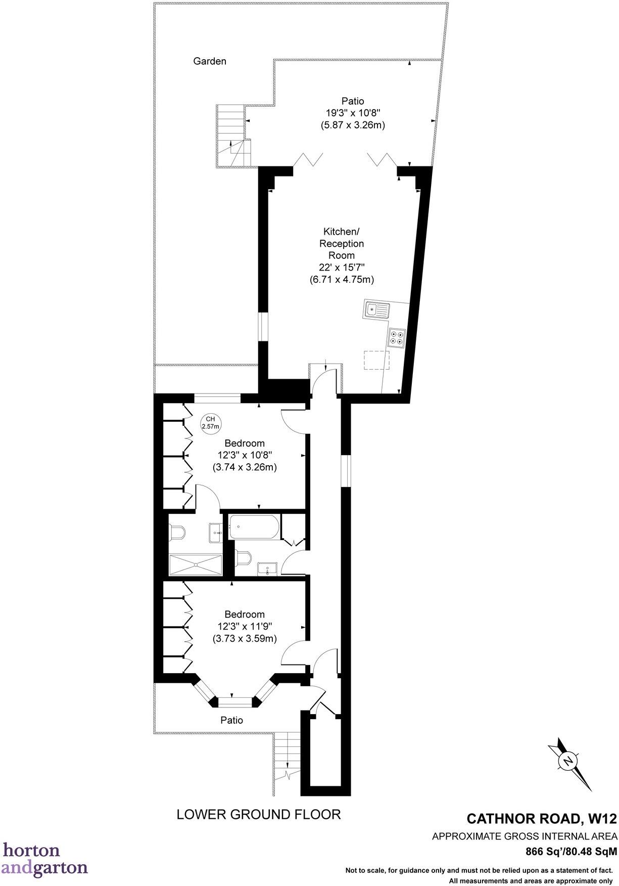
- 2 bedrooms, 2 bathrooms (one ensuite)
- Open-plan kitchen/living space with bi-folding doors
- Private west-facing garden
- Off-street parking space
- Share of Freehold with 974 years remaining on the lease
- Close proximity to transport and amenities
**Concerns:**
- High local crime rate
- Solid brick walls with no insulation
- Service charge of £410 annually for communal expenses
This charming Victorian garden flat in desirable Shepherd's Bush offers a perfect blend of modern living within a period property. Spanning 866 Sq' (80.48 SqM), it features two well-proportioned bedrooms with built-in wardrobes, two modern bathrooms, and an impressive open-plan living and dining area that opens to a private west-facing garden—ideal for enjoying sunny days. The thoughtful layout maximizes space and light, while the convenience of off-street parking adds extra value.
Families and professionals alike will appreciate the nearby green spaces and amenities of Askew Village, as well as the excellent local schools, including several rated top 10% by Ofsted. While the surrounding area has a high crime rate, the property is well-connected, ensuring you can easily reach transport links and leisure options. With its share of Freehold tenure, this appealing flat offers the chance for a comfortable urban lifestyle with the potential for future personalization—don’t miss out on this unique offering!
2 bedroom flat for sale in Bassein Park Road, Askew Village, London, W12 — £625,000 • 2 bed • 1 bath • 679 ft²
2 bedroom flat for sale in Stanlake Road, Shepherd's Bush, London, W12 — £685,000 • 2 bed • 2 bath • 742 ft²
2 bedroom apartment for sale in Askew Road, London, W12 — £475,000 • 2 bed • 1 bath • 778 ft²
1 bedroom flat for sale in Goldhawk Road, Shepherd's Bush, London, W12 — £475,000 • 1 bed • 1 bath • 527 ft²
2 bedroom flat for sale in Bassein Park Road, Shepherd's Bush, W12 — £525,000 • 2 bed • 1 bath • 670 ft²
2 bedroom flat for sale in Coningham Road, Shepherds Bush, W12 — £525,000 • 2 bed • 1 bath • 665 ft²


















































