Turn-key three-bed cottage near East Croydon — stylish finish, no garden, needs energy upgrades..
- Recently refurbished throughout with show-home finish
- Brand-new fitted kitchen, bathroom and en-suite
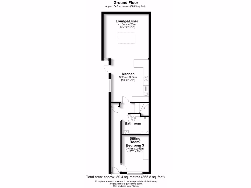
- Compact 695 sq ft, flexible two-floor layout
- No garden; extended fully to the rear
- Freehold tenure with EPC rating C
- Electric room heaters; solid brick walls, likely uninsulated
- Medium flood risk and high local crime levels
- Excellent transport links; close to East Croydon station
Recently refurbished and presented like a show home, this three-bedroom end-terrace cottage offers a compact, move-in-ready base in central Croydon. The property’s standout features include a brand-new fitted kitchen, contemporary bathroom plus en-suite, new floor coverings and a tasteful full redecoration throughout.
Designed for flexible living across two floors, the layout suits a commuter family or professionals who value proximity to East Croydon station, shops and cafes. At about 695 sq ft the rooms are well finished and practical, with an open-plan kitchen/dining area that maximises the available space.
Important practical points: the house has no garden and sits on a small plot, so outdoor space is not available. Heating is by electric room heaters and the building is solid brick with assumed no wall insulation — buyers should consider energy upgrades. There is a medium flood risk for the area and local crime levels are high; these factors may affect insurance costs and longer-term peace of mind.
Overall, this property will suit buyers seeking a stylish, low-maintenance central home with excellent transport links and nearby schools. It represents a turn-key option with clear potential for further improvement (insulation and heating upgrades) for those wanting to add value or reduce running costs.
3 bedroom terraced house for sale in Borough Hill, Croydon, CR0 — £389,950 • 3 bed • 2 bath • 1054 ft²
2 bedroom end of terrace house for sale in Cliffe Road, CR2 — £460,000 • 2 bed • 1 bath • 699 ft²
2 bedroom house for sale in Surrey, East Croydon, CR0 — £330,000 • 2 bed • 1 bath • 511 ft²
2 bedroom terraced house for sale in West Street, Croydon, CR0 — £365,000 • 2 bed • 1 bath • 595 ft²
2 bedroom terraced house for sale in Bourne Street, Croydon, CR0 — £375,000 • 2 bed • 1 bath • 797 ft²
2 bedroom semi-detached house for sale in Laud Street, Croydon, CR0 — £375,000 • 2 bed • 1 bath • 728 ft²


















































