LA10 5PH - 3 bedroom semidetached house for sale in East Paradise, Gar…

View on Property Piper

3 bedroom semi-detached house for sale in East Paradise, Garsdale, Sedbergh, LA10

Summary - EAST PARADISE GARSDALE SEDBERGH LA10 5PH

3 bed 1 bath Semi-Detached

Character cottage with solar battery, parking and exceptional fell views.
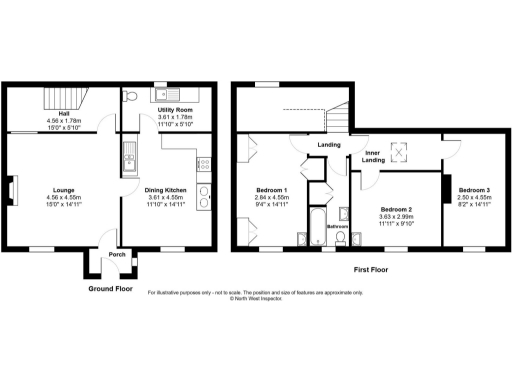
Three double bedrooms with exposed beams and vaulted ceilings in places
A classic 17th-century stone cottage set on an elevated fellside plot within the Yorkshire Dales National Park. The house retains exposed beams, polished oak flooring and a cosy lounge with a multifuel stove, while a modern fitted kitchen includes a solid-fuel Rayburn and integrated dishwasher.

Practical energy features include solar panels with a battery that supplies plentiful electricity, reducing daytime reliance on grid power. There is off-road parking for at least two cars, a recently relandscaped south-facing tiered garden and a small copse to the side, all providing wide, unspoilt countryside views from every elevation.

The first floor has three double bedrooms and a family bathroom; the owners have reconfigured the landing to improve access. Important considerations: the property has an EPC band G and stone walls likely lack modern insulation, so heating currently relies partly on anthracite fuel and the Rayburn — running costs and maintenance should be factored in.

This home will suit buyers seeking rural character, strong views and energy self-sufficiency potential, and who are prepared for older-building maintenance and possible energy-efficiency improvements. Viewings are recommended to appreciate the setting and internal space.

Property Details

Brochure Descriptions

Image Descriptions

Floorplan Description

Rooms

Textual Property Features

Target Audience

AI Tags

Detected Visual Features

EPC Details

Nearby Schools

Nearest Bars And Restaurants

,,,,}

Nearest General Shops

,,}

Nearest Grocery shops

,,}

Nearest Supermarkets

,,}

Nearest Religious buildings

,,}

Nearest Medical buildings

,,,}

Nearest Leisure Facilities

,,,,}

Nearest Tourist attractions

,,}

Nearest Train stations

,,,,}

Nearest Bus stations and stops

,,,,}

Nearest Hotels

,,}

Tags

Local Market Stats

AirBnB Data

Similar Properties

Meta

High Res Images

Compatible Images

Low res Images

Thumbnails

Raw Images

High Res Floorplan Images

Compatible Floorplan Images

Low res Floorplan Images

FloorplanImages Thumbnail

Raw Floorplan Images