Affordable, turn-key Victorian one-bed flat with character and central Main Street location.
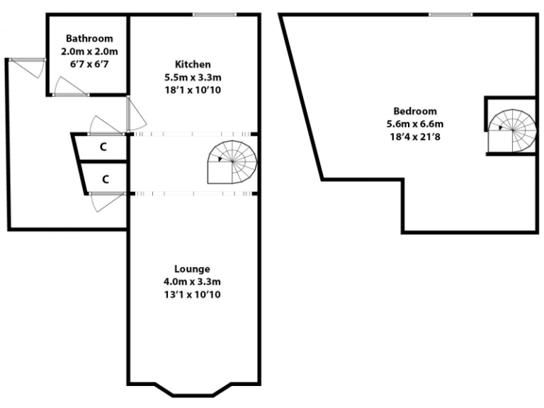
- Spacious 1-bed top-floor and attic flat, approx. 778 sq ft
- Bay-windowed lounge with open-plan kitchen/dining
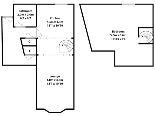
- Large attic bedroom accessed via spiral staircase
- Modern bathroom with shower-over-bath
- Double glazing and secure door entry
- Communal rear garden and central Main Street location
- Tenure unknown — must be checked by buyer
- Located in a very deprived area; check local considerations
An affordable, turn-key one-bedroom top-floor and attic flat set in a Victorian mixed-use building on Main Street, Bellshill. Priced at £69,995 and offering around 778 sq ft, the home pairs period exterior character with a modern, bright interior — bay-windowed lounge, open-plan kitchen/dining and a stylish bathroom, all finished in neutral tones. The spiral staircase leads to a large attic bedroom that gives the property distinctive character and versatile living space.
Practical features include double glazing, secure entry, communal rear garden and electric heating. The location delivers excellent local amenities, frequent transport links and nearby shops, making this an attractive option for a first-time buyer or buy-to-let investor looking for affordable central living.
Buyers should note material considerations: the property sits in a very deprived area and the local demographics are described as having Eastern European communities and challenged white communities. Tenure is listed as unknown — purchasers must confirm tenure and associated costs. The multi-storey layout and spiral staircase may not suit those with limited mobility, and electric heating can be more expensive than alternative heating systems.
1 bedroom flat for sale in Telford Street, Bellshill, ML4 — £59,995 • 1 bed • 1 bath • 527 ft²
2 bedroom flat for sale in Gunn Quadrant, Bellshill, North Lanarkshire, ML4 — £95,000 • 2 bed • 1 bath • 570 ft²
1 bedroom flat for sale in McCallum Gardens, Bellshill, ML4 — £59,995 • 1 bed • 1 bath
2 bedroom flat for sale in Telford Street, Bellshill, ML4 — £79,995 • 2 bed • 1 bath • 700 ft²
1 bedroom flat for sale in 13 Macdougall Quadrant, ML4 — £54,995 • 1 bed • 1 bath
2 bedroom apartment for sale in Scott Place, Bellshill, ML4 — £94,995 • 2 bed • 2 bath














































































































































