Vacant, flexible 2–3 bed home near town — ideal for refurbishment or rental.
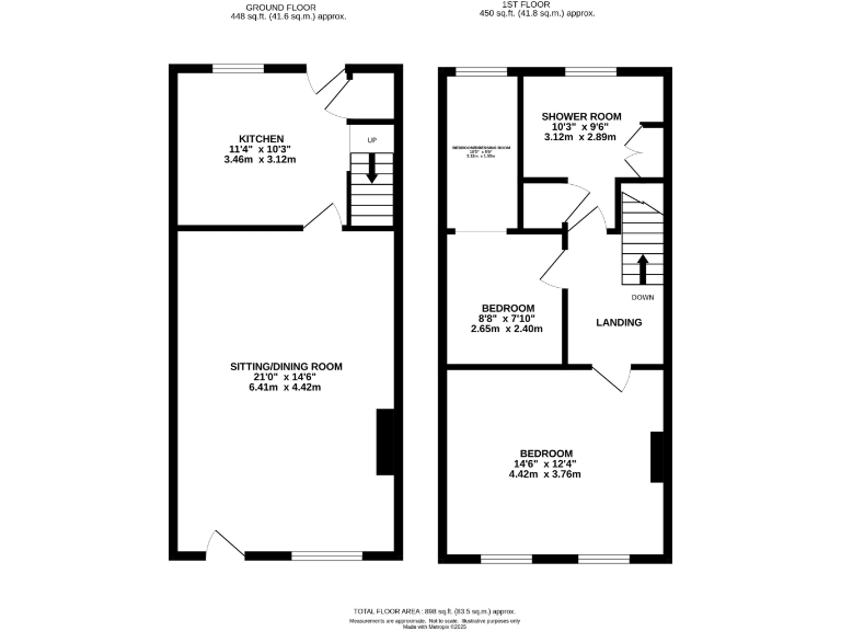
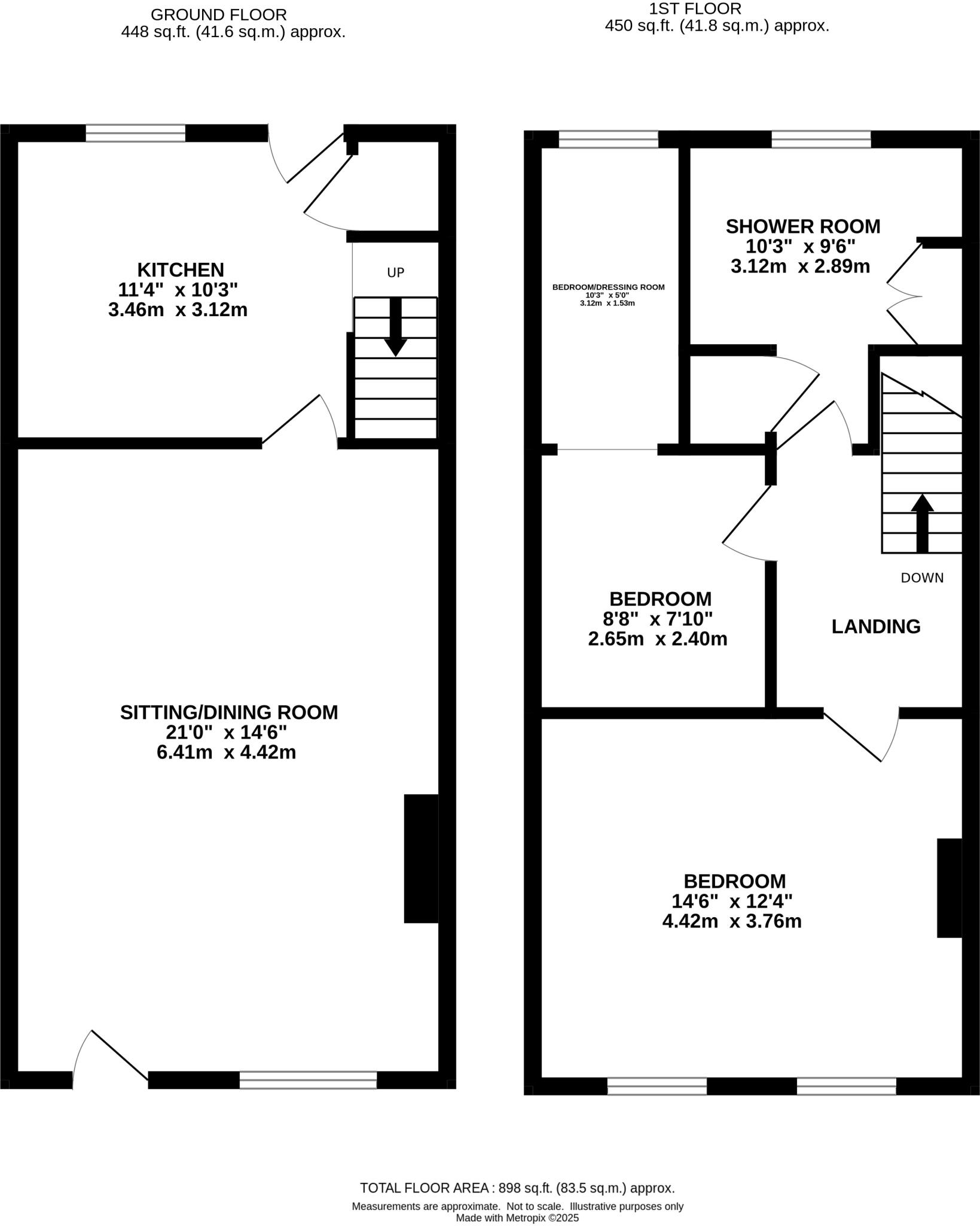
21' through lounge/dining room, generous open-plan reception
Two/three bedroom layout offers flexible living or rental use
Off-street parking plus courtyard and private well-stocked garden
Recently refitted bathroom; kitchen shows dated wear, may need updating
Mixed heating: mains gas plus room heaters and electric storage heaters
Solid brick walls likely uninsulated; consider insulation costs
Sold at livestream auction — admin and buyer's fees payable on exchange
Area notes: deprived district with above-average crime statistics
A vacant Victorian mid-terrace close to Fakenham town centre, offered for sale by livestream auction. The house provides a generous 21' through lounge/dining room and flexible two/three bedroom accommodation across multiple storeys, suited to a first-time buyer or investor looking for rental or refurbishment potential.
The property benefits from off-street parking, a courtyard leading to a well-stocked garden, double glazing and a recently refitted bathroom. The kitchen has mid‑century modern fittings with natural light but shows dated wear and may need updating to suit modern tastes. Heating is mixed — mains gas central heating is present alongside room heaters and electric storage heaters.
Notable practical points include freehold tenure, an EPC rating of C, Council Tax Band A and no flood risk. The area is a small town fringe with good local amenities and schools, but it scores as a deprived area with above-average local crime rates. Buyers should note the assumed solid brick walls with no insulation and the unknown installation date of the glazing.
This will be sold at a livestream auction with associated administration and buyer’s premium fees payable on exchange. The property represents value for buyers willing to accept some cosmetic updating and carry out insulation or heating improvements where desired.
3 bedroom terraced house for sale in 3 Melton Street, Melton Constable, Norfolk NR24 2DB, NR24 — £120,000 • 3 bed • 1 bath • 650 ft²
3 bedroom end of terrace house for sale in Queens Road, Fakenham, NR21 — £210,000 • 3 bed • 1 bath • 894 ft²
3 bedroom detached bungalow for sale in 8 Charles Road, Fakenham, Norfolk NR21 8JX, NR21 — £230,000 • 3 bed • 1 bath • 729 ft²
2 bedroom flat for sale in Norwich Street, FAKENHAM, NR21 — £20,000 • 2 bed • 1 bath
2 bedroom flat for sale in Norwich Street, Fakenham, NR21 — £20,000 • 2 bed • 1 bath
2 bedroom end of terrace house for sale in Westmead Road, Fakenham, Norfolk, NR21 — £210,000 • 2 bed • 1 bath • 916 ft²






















































































