Cash-only 2-bed maisonette with garden and garage, short lease — needs renovation..
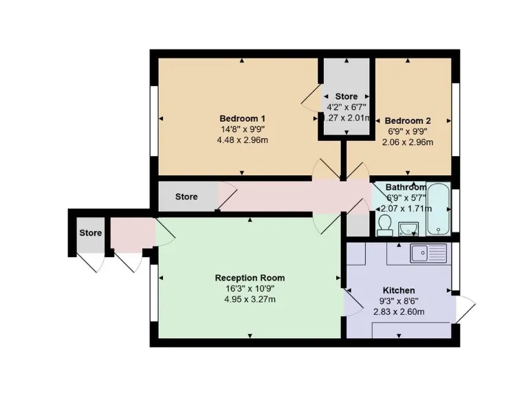
Two-bedroom ground-floor maisonette, 499 sq ft
A compact two-bedroom ground-floor maisonette offered with a private rear garden and single garage, positioned for transport links and local amenities. The 499 sq ft layout includes a reception room, kitchen and family bathroom — straightforward accommodation that suits a cash buyer or a local investor seeking rental or refurbishment potential.
Important legal and funding considerations are clear: the property is leasehold with only 45 years remaining. Mortgage lenders will likely refuse to lend; sale is effectively for cash buyers only. Buyers should obtain full lease verification from their solicitor or surveyor before committing.
The flat requires updating and modernisation throughout, which presents scope to add value for a buyer prepared to renovate. Note area context: higher-than-average crime levels and local deprivation indicators. A 5% buyer fee on the purchase price is payable; ground rent is £98 per year (paid £49 every six months).
In short, this is a low-cost purchase with obvious limitations and clear upside for a cash investor or hands-on buyer who accepts the short lease and renovation requirement. Verify lease details and factor in fees, refurbishment costs and local area conditions when assessing suitability.
2 bedroom maisonette for sale in Beeches Road, Birmingham, B42 — £95,000 • 2 bed • 1 bath • 593 ft²
1 bedroom maisonette for sale in Felstone Road, Birmingham, B44 — £105,000 • 1 bed • 1 bath • 517 ft²
2 bedroom maisonette for sale in Victoria Road, Acocks Green, Birmingham, West Midlands, B27 — £100,000 • 2 bed • 1 bath • 651 ft²
2 bedroom maisonette for sale in Rowood Drive, Solihull, B92 — £110,000 • 2 bed • 1 bath • 492 ft²
2 bedroom maisonette for sale in Enfield Close, Birmingham, West Midlands, B23 — £80,000 • 2 bed • 1 bath • 636 ft²
2 bedroom maisonette for sale in Prince Of Wales Lane, Birmingham, B14 4LH, B14 — £155,000 • 2 bed • 1 bath • 555 ft²


































