EX34 8JX - 2 bedroom bungalow for sale in The Shields, Ilfracombe, Dev…

View on Property Piper

2 bedroom bungalow for sale in The Shields, Ilfracombe, Devon, EX34

Summary - 17 The Shields, Ilfracombe, Devon, EX34 EX34 8JX

2 bed 1 bath Bungalow

Modern single-storey living with sea views, garage and sunny rear garden.
Detached new-build 2-bedroom bungalow with Juliet balcony sea views
A newly built detached 2-bed bungalow in Seascape, The Shields, offers bright, single-storey living with coastal views. The open-plan 22ft kitchen/lounge/dining room is the home's focal point, with French doors and a Juliet balcony framing far-reaching sea and coastal views. Integrated appliances and modern finishes reflect the development's high specification.

Practical benefits include an integral garage, off-road parking, a sunny level rear garden and mains gas central heating. The plot is small and landscaped, suited to low-maintenance living. All homes on the development come with a 10-year structural warranty, giving long-term protection for new buyers.

Considerations: the property has one bathroom and two bedrooms, so space is best for downsizers, couples or those seeking a lock-up-and-leave coastal base rather than a growing family. The local secondary school is currently rated as Requires Improvement. The plot sits in a clustered layout within a larger development, so immediate neighbours are close by.

Ilfracombe's coastal location provides beaches, coastal walks, historic attractions and local shops within walking distance. This bungalow suits buyers wanting modern, single-storey living with sea views and low-maintenance outdoor space in a peaceful, low-crime setting.

Property Details

Image Descriptions

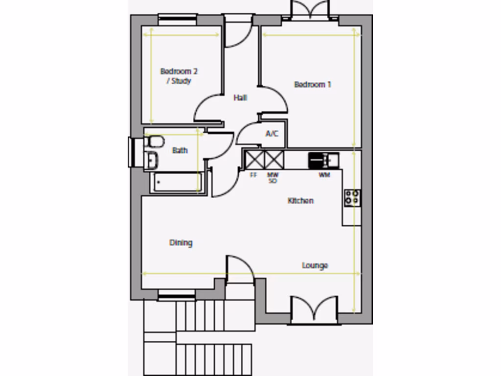
Floorplan Description

Rooms

Textual Property Features

Target Audience

AI Tags

Detected Visual Features

EPC Details

Nearby Schools

Nearest Bars And Restaurants

,,,,}

Nearest General Shops

,,}

Nearest Grocery shops

,,}

Nearest Supermarkets

,,}

Nearest Religious buildings

,,}

Nearest Medical buildings

,,,}

Nearest Leisure Facilities

,,,,}

Nearest Tourist attractions

,,}

Nearest Train stations

,,,,}

Nearest Bus stations and stops

,,,,}

Nearest Hotels

,,}

Tags

Local Market Stats

AirBnB Data

Similar Properties

Meta

High Res Images

Compatible Images

Low res Images

Thumbnails

Raw Images

High Res Floorplan Images

Compatible Floorplan Images

Low res Floorplan Images

FloorplanImages Thumbnail

Raw Floorplan Images