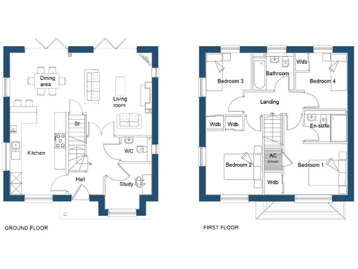
**Standout Features:**
- Newly constructed, double-fronted, four-bedroom detached home
- Modern fitted kitchen with upgraded finishes
- Spacious sitting and dining area with large windows
- Study for remote work or additional living space
- Three well-appointed bathrooms
- Includes a garage and driveway parking
- Generous garden with additional outdoor space
- Located in a modern, family-friendly neighborhood
**Notable Concerns:**
- New build; ongoing adjustments or landscaping may be needed
- Council tax rating is currently TBC
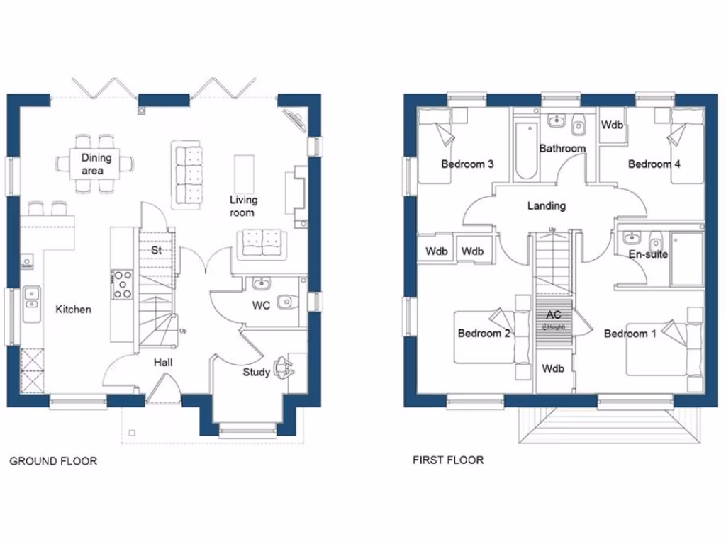
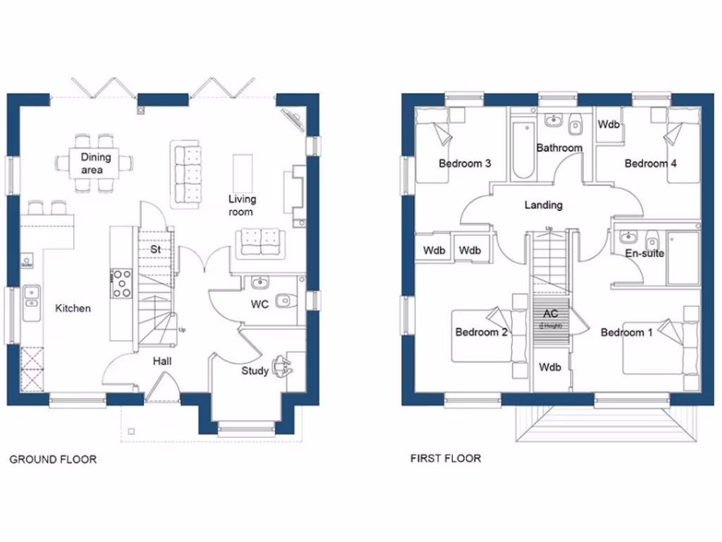
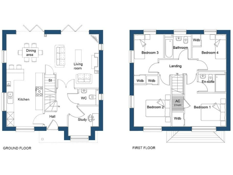
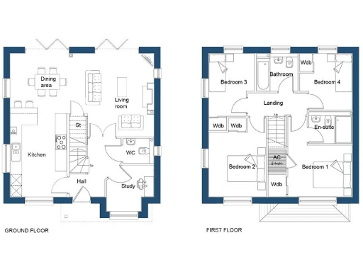
Discover the perfect family haven in this newly constructed, double-fronted four-bedroom detached home in Okehampton. Boasting a contemporary design, this property features a modern fitted kitchen, a generous open-plan sitting and dining area, and a dedicated study—ideal for remote work or study space. The home is complemented by three bathrooms, ensuring convenience for families.
Enjoy outdoor living with a spacious garden and the added benefit of a garage and driveway parking, making this property not only practical but perfect for entertaining. Nestled in a desirable development within easy reach of local amenities, schools, and the stunning Dartmoor landscape, this home offers comfort and security for all.
This exclusive opportunity is perfect for families seeking ample space and modern living. Act fast—homes in this sought-after area won’t last long!







































































































































