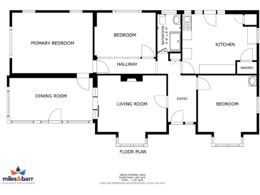
**Standout Features:**
- Spacious detached bungalow with 3 double bedrooms and 1 shower room
- Two generous reception rooms: lounge and dining area
- Off-street parking and a large detached garage
- Expansive, mainly paved garden with mature fruit trees and a greenhouse
- Chain-free sale in an affluent community
- Positioned close to local amenities and transport links
- Potential for renovation and modernization
**Summary:**
Nestled in the idyllic seaside town of Broadstairs, this charming detached bungalow on Bradstow Way offers a fantastic opportunity for those seeking a project to transform into their dream home. Boasting a generous total area of 1,297 square feet, the property features a welcoming L-shaped entrance hallway, a spacious lounge flowing into the dining area, and three ample double bedrooms. With a detached garage perfect for additional storage or as a workshop, and a generous garden showcasing a variety of mature fruit trees, this home is ideal for families, garden enthusiasts, or investors looking to capitalize on its renovation potential.
While the bungalow requires some modernization, it presents a blank canvas for your imagination. Located close to local amenities, including shops and schools, and just a stone's throw from Broadstairs' picturesque beaches, this property uniquely blends suburban comfort with coastal charm. Don't miss your chance to create a personalized retreat in a highly sought-after and affluent community. Act quickly, as opportunities like this are rare!
3 bedroom detached house for sale in Harmsworth Gardens, Broadstairs, CT10 — £425,000 • 3 bed • 1 bath • 1408 ft²
3 bedroom bungalow for sale in Wallace Way, Broadstairs, Kent, CT10 — £375,000 • 3 bed • 1 bath • 958 ft²
3 bedroom bungalow for sale in Colburn Road, Broadstairs, Kent, CT10 — £450,000 • 3 bed • 1 bath • 1177 ft²
3 bedroom bungalow for sale in Castle Avenue, Broadstairs, CT10 — £500,000 • 3 bed • 1 bath • 1020 ft²
2 bedroom bungalow for sale in Northwood Road, Broadstairs, Kent, CT10 — £300,000 • 2 bed • 1 bath • 1189 ft²
2 bedroom bungalow for sale in Salisbury Avenue, Broadstairs, CT10 — £375,000 • 2 bed • 1 bath • 740 ft²






















































































