Three-bedroom family home with garden, garage and rural outlook near Malvern.
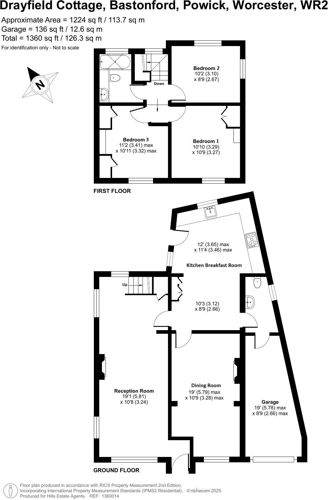
Three double bedrooms and family bathroom
Detached period cottage with character features
Open-plan kitchen/breakfast and two reception rooms
Private driveway plus attached garage/workshop
Landscaped front, side and rear gardens with rural views
Solid brick walls likely uninsulated; thermal upgrades advisable
Roof tiles show weathering consistent with age
Slow broadband and average mobile signal; planning checks advised
Set in the hamlet of Bastonford between Malvern and Worcester, Drayfield Cottage is a traditional detached, three-bedroom home that will suit families seeking village life and countryside views. The house offers character features—exposed beams and period fireplaces—and a comfortable layout with two reception rooms plus a large open-plan kitchen/breakfast area. Landscaped front and rear gardens, a private driveway and an attached workshop/garage add practical space and kerb appeal.
The property is presented in good decorative order but is traditional in construction and size. The solid brick walls are likely uninsulated and roof tiles show age-related weathering; modest internal modernisation or targeted upgrading (insulation, kitchen or bathroom improvements) would add value. There is scope to reconfigure or extend subject to planning, particularly given the attached garage and driveway space.
Practical attributes include mains gas central heating, double glazing (installed pre-2002), freehold tenure and no reported flood risk. Broadband speeds are slow and mobile signal is average—important for home-working buyers. Council tax is moderate. Overall, this cottage emphasises location and character rather than contemporary luxury; it appeals to buyers wanting a comfortable family home with potential to personalise and improve.
3 bedroom end of terrace house for sale in St. James Close, Littleworth, Worcester, WR5 — £320,000 • 3 bed • 1 bath • 1107 ft²
4 bedroom detached house for sale in The Old Forge, Froggery Lane, Stoulton, Worcestershire. WR7 4RQ, WR7 — £660,000 • 4 bed • 2 bath • 2371 ft²
4 bedroom detached house for sale in Brayswick Bank, Brayswick, Callow End, Worcester, WR2 — £795,000 • 4 bed • 3 bath • 2079 ft²
2 bedroom semi-detached house for sale in Bowling Green Road, Powick, Worcester, Worcestershire, WR2 — £320,000 • 2 bed • 1 bath • 864 ft²
4 bedroom detached house for sale in Brotheridge Green, Hanley Castle, Worcester, WR8 — £700,000 • 4 bed • 2 bath • 1919 ft²
3 bedroom semi-detached house for sale in Stonebow Road, Drakes Broughton, WR10 — £330,000 • 3 bed • 1 bath • 983 ft²






























































































































































