Single-storey home with enclosed garden and generous parking, ideal for easy living.
No onward chain, freehold tenure
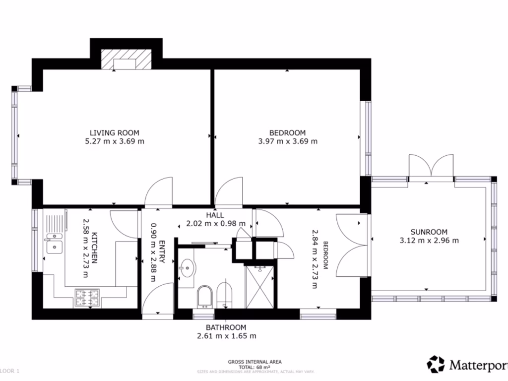
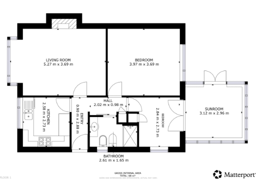
Single-floor living in popular Bessacarr, this two-bedroom semi-detached bungalow offers an easy, low-maintenance home with no onward chain. A bright lounge opens into a conservatory overlooking an enclosed rear garden, ideal for relaxed afternoons and accessible outdoor space. The driveway and garage provide generous off-road parking and storage, useful for visitors or a small workshop.
Practical features include double glazing, mains gas central heating with a boiler and radiators, and freehold tenure. At about 731 sq ft the footprint is average for a bungalow of this era (constructed c.1967–1975), making the layout manageable but more compact than modern builds. Council tax costs are described as cheap and there is no flood risk.
The property will suit downsizers or buyers seeking single-level accommodation close to local amenities and good schools. While the kitchen is modern in appearance, the bungalow’s age means some areas may benefit from updating to personal taste. The single bathroom and overall internal space reflect the traditional bungalow layout and may limit larger families.
A 3D virtual tour is available for initial viewing. The garage could offer conversion potential (subject to planning), and the conservatory provides immediate extra living space. No significant scenic views; outlooks are over neighbouring gardens.
2 bedroom semi-detached bungalow for sale in Stoops Lane, Bessacarr, Doncaster, DN4 — £205,000 • 2 bed • 1 bath • 625 ft²
2 bedroom semi-detached bungalow for sale in Lindsey Close, Doncaster, DN4 — £195,000 • 2 bed • 1 bath • 554 ft²
2 bedroom detached bungalow for sale in Fore Hill Avenue, Bessacarr, Doncaster, DN4 — £240,000 • 2 bed • 1 bath • 645 ft²
2 bedroom semi-detached bungalow for sale in Roxby Close, Bessacarr, Doncaster, DN4 — £185,000 • 2 bed • 1 bath • 556 ft²
2 bedroom semi-detached bungalow for sale in Lindsey Close, Bessacarr, Doncaster, DN4 — £155,000 • 2 bed • 1 bath • 510 ft²
2 bedroom detached bungalow for sale in Stoops Lane, Bessacarr, Doncaster, DN4 — £240,000 • 2 bed • 1 bath • 735 ft²


































































