Spacious single‑level family home on a large private riverside plot near Bridgnorth.
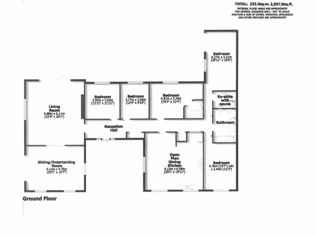
- Single‑storey detached bungalow with five bedrooms and multiple reception rooms
- Riverside plot bordering the Mor Brook with elevated countryside views
- Very large gardens, wide gravel drive, open‑fronted outbuilding for covered parking
- Principal bedroom en‑suite with sauna; second bedroom en‑suite plus wet room
- Open‑plan kitchen/dining/living layout and separate sitting/games room
- Oil‑fired boiler and radiators; Energy Performance Rating D
- Cavity walls assumed uninsulated — likely need insulation upgrades
- Very slow broadband locally; council tax above average
A substantial single‑storey home set on a very large riverside plot, this five‑bedroom bungalow is laid out for modern family living. The open-plan kitchen/dining/living area, separate sitting/games room and generous room proportions create flexible space for socialising and quiet zones. Principal bedroom benefits from an en‑suite and sauna; a second bedroom also has an en‑suite, plus there is a family bathroom and an additional wet room.
The plot borders the Mor Brook and offers elevated countryside views, extensive established gardens, a wide gravel driveway with central forecourt and an open‑fronted outbuilding suitable for covered parking or storage. The property is offered with no upward chain and sits in a quiet hamlet within convenient distance of Bridgnorth and Much Wenlock, with a selection of primary and secondary schools nearby.
Practical considerations are clear: the house was built in the mid 20th century, has cavity walls that are assumed uninsulated, oil‑fired central heating and an Energy Performance Rating of D. Broadband speeds in the area are very slow and council tax sits above the national average. These factors mean the home will suit buyers willing to invest in energy upgrades and modern connectivity to fully optimise running costs and comfort.
Overall this is a rare single‑level family property with strong outdoor amenity and versatile accommodation. It will appeal to families wanting one‑floor living, buyers seeking countryside privacy, or those prepared to make targeted improvements to enhance energy performance and digital connectivity.
3 bedroom detached bungalow for sale in Mytton Oak Road, Bowbrook, Shrewsbury, SY3 — £379,950 • 3 bed • 1 bath • 1406 ft²
3 bedroom house for sale in Claverley, Wolverhampton, WV5 — £625,000 • 3 bed • 2 bath • 2045 ft²
3 bedroom bungalow for sale in Highdrive, Walford Heath, Shrewsbury, SY4 — £435,000 • 3 bed • 1 bath • 1158 ft²
5 bedroom detached bungalow for sale in Uffington Lane, Uffington, Shrewsbury, SY4 — £575,000 • 5 bed • 3 bath • 2034 ft²
4 bedroom bungalow for sale in 14 Love Lane, Bridgnorth, WV16 — £695,000 • 4 bed • 2 bath • 1638 ft²
3 bedroom detached bungalow for sale in Fairfield, Bridgnorth, WV16 — £350,000 • 3 bed • 1 bath • 1101 ft²










































































































