**Standout Features:**
- Two generously sized bedrooms, ideal for couples or small families
- Bright living area with large bay window
- Well-maintained separate kitchen/dining area with garden access
- Spacious and private rear garden, perfect for entertaining or potential extension (STPP)
- Driveway parking
- Chain-free sale for a quick move-in
- Convenient location near local shops, schools, and transport links
**Summary:**
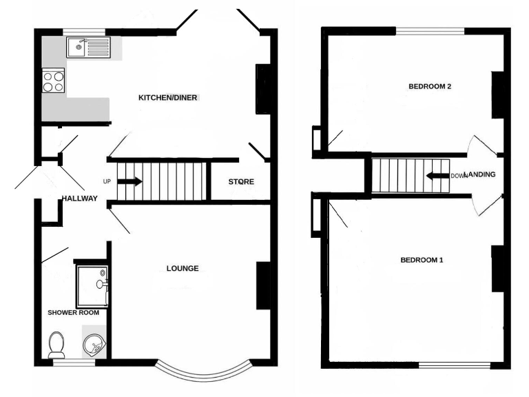
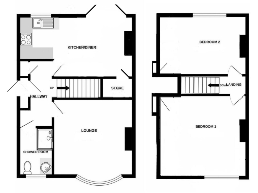
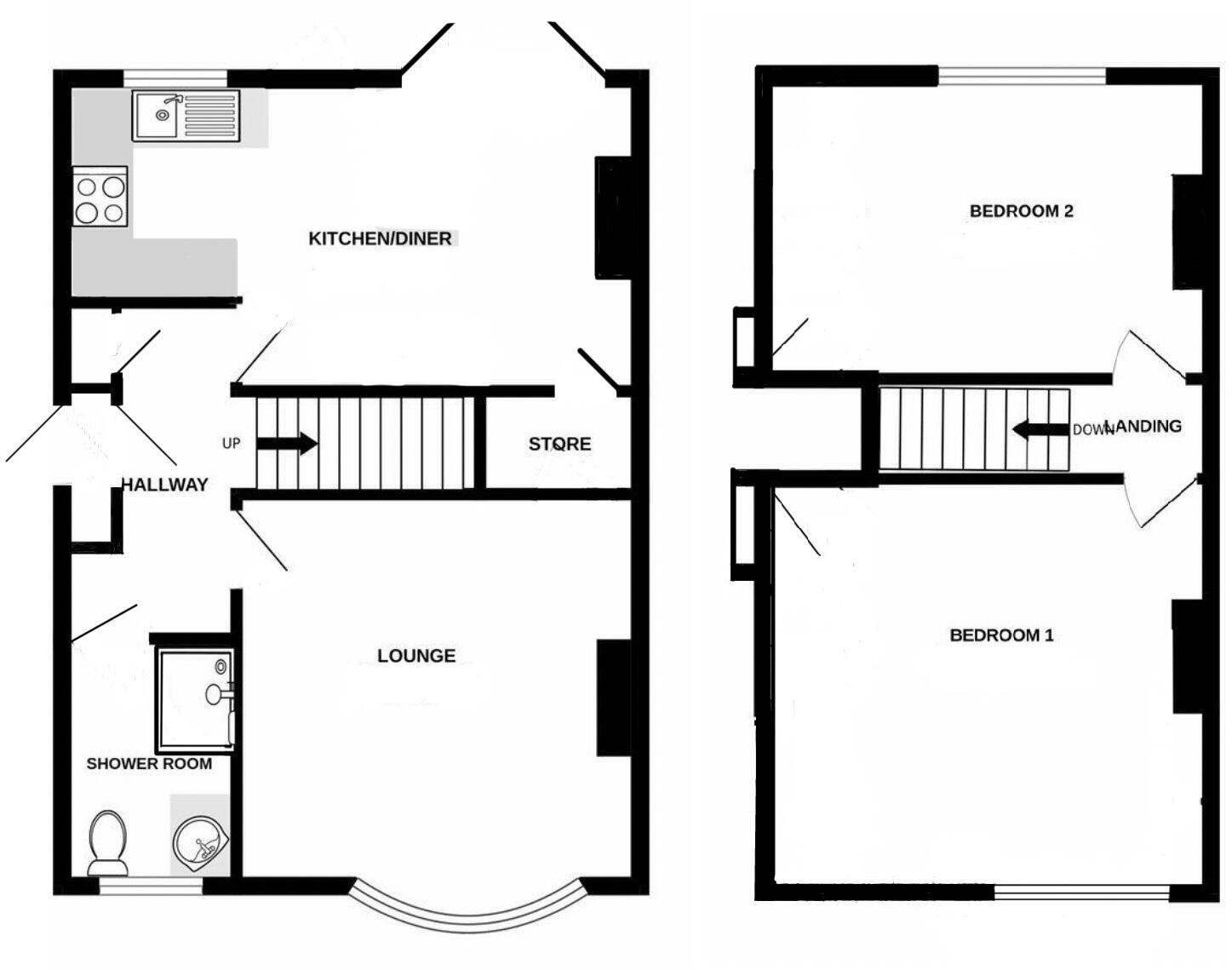
Discover this charming two-bedroom semi-detached home on Twydall Lane, perfectly suited for first-time buyers, families, or investors seeking a convenient and inviting space. With 797 square feet of well-designed living area, this property boasts a bright and airy living room that floods with natural light through a large front-facing window. The separate kitchen/dining area offers direct access to a spacious, low-maintenance rear garden—ideal for entertaining during summer or creating a cozy outdoor retreat.
Take advantage of the generous garden's potential to extend the property, subject to planning permission. Driveway parking adds convenience for busy families. Located in a peaceful residential area within walking distance of local schools and amenities, this home promises a seamless blend of comfort and practicality. Embrace a chain-free sale and the opportunity to move in without delay—properties like this don’t stay on the market long! Envision your family's future in this inviting home today.
2 bedroom semi-detached house for sale in Ten Acre Way, Rainham, Gillingham, Kent, ME8 — £300,000 • 2 bed • 1 bath • 444 ft²
3 bedroom semi-detached house for sale in Thornham Road, Twydall, Kent, ME8 — £350,000 • 3 bed • 2 bath • 1071 ft²
3 bedroom end of terrace house for sale in Brabourne Avenue, Gillingham, Kent, ME8 — £290,000 • 3 bed • 1 bath • 913 ft²
2 bedroom semi-detached house for sale in Nightingale Close, Rainham, Gillingham, Kent, ME8 — £280,000 • 2 bed • 1 bath • 625 ft²
3 bedroom semi-detached house for sale in Lyminge Close, Twydall, Rainham, Kent, ME8 — £300,000 • 3 bed • 2 bath • 946 ft²
3 bedroom semi-detached house for sale in Lower Twydall Lane, Gillingham Kent, ME8 — £320,000 • 3 bed • 1 bath • 818 ft²










































