UB8 2HQ - 3 bedroom semidetached house for sale in Maygoods View, Uxb…

View on Property Piper

3 bedroom semi-detached house for sale in Maygoods View, Uxbridge, UB8

Summary - 18 MAYGOODS VIEW COWLEY UXBRIDGE UB8 2HQ

3 bed 2 bath Semi-Detached

**Standout Features:**
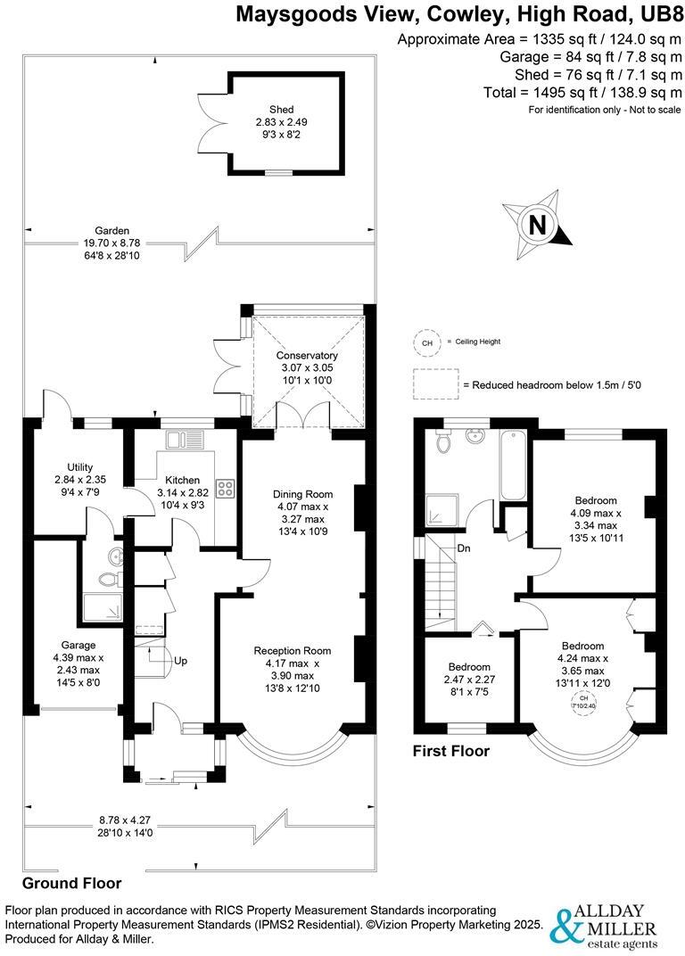
- Spacious 1495 sq ft semi-detached home
- 3 bedrooms and 2 bathrooms
- Bright conservatory leading to a large private garden
- Garage and off-street parking
- Potential to extend (subject to planning permission)
- Short walk to Elizabeth Line and Uxbridge amenities
- EPC Rating - C

**Summary:**
Discover this charming semi-detached home on Maysgoods View, perfect for families seeking a blend of comfort and growth potential in a sought-after area. Spanning 1495 sq ft, this property features a large, inviting open-plan living and dining space that flows into a delightful conservatory, enhancing the indoor-outdoor connection and offering a view of the expansive rear garden—perfect for entertaining or family leisure.

The first floor includes three generously proportioned bedrooms, accompanied by a modern four-piece bathroom for convenient family living. There is also an attic with conversion potential, subject to permissions. With a garage and off-street parking, this home caters to your practical needs while remaining just steps away from local shops, schools, and excellent transport links to Central London via the Elizabeth Line.

While the property enjoys a strong location, it is important to acknowledge the above-average crime rates in the area, which potential buyers may want to consider. However, with ample room for personal touches and future expansions, this home is poised to offer both comfort and investment potential. Act quickly to seize this remarkable opportunity!

Property Details

Brochure Descriptions

Image Descriptions

Floorplan Description

Rooms

Textual Property Features

Detected Visual Features

EPC Details

Nearby Schools

Nearest Bars And Restaurants

,,,,}

Nearest General Shops

,,}

Nearest Grocery shops

,,}

Nearest Supermarkets

,,}

Nearest Religious buildings

,,}

Nearest Medical buildings

,,,}

Nearest Airports

}

Nearest Leisure Facilities

,,,,}

Nearest Tourist attractions

,,}

Nearest Train stations

,,,,}

Nearest Bus stations and stops

,,,,}

Nearest Hotels

,,}

Tags

Local Market Stats

AirBnB Data

Similar Properties

Meta

High Res Images

Compatible Images

Low res Images

Thumbnails

Raw Images

High Res Floorplan Images

Compatible Floorplan Images

Low res Floorplan Images

FloorplanImages Thumbnail

Raw Floorplan Images