**Standout Features:**
- Three spacious bedrooms
- Modern fitted kitchen with integrated dining area
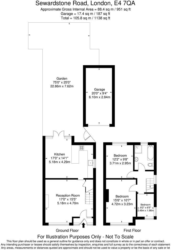
- Approx. 75ft rear garden with lawn and patio
- Garage and off-street parking for two cars
- Chain-free sale
- Located near outstanding primary schools and Epping Forest
**Potential Concerns:**
- Crime rate is average in the area
- Area classification indicates some deprivation
Discover this charming 1930s semi-detached house on Sewardstone Road, perfect for families seeking both space and style. This property boasts three well-proportioned bedrooms, a generous living room featuring a mid-century bay window, and an inviting open-plan kitchen with modern finishes and a dining area, ideal for entertaining. The stylish four-piece bathroom ensures comfort, while the 75ft garden offers a delightful outdoor retreat for relaxation or play.
With the added benefit of a garage and off-street parking for up to two vehicles, accessibility is a breeze. The home's close proximity to the outstanding Yardley Primary School and lush green spaces of Epping Forest enhances its appeal to families. While the overall area may reflect an average crime rate and some deprivation elements, the vibrant urban culture and swift transport links to Liverpool Street and Walthamstow Central present a valuable investment opportunity. This property is offered chain-free, so act fast to secure a future in this desirable location!
4 bedroom semi-detached house for sale in Westward Road, Chingford, London, E4 — £750,000 • 4 bed • 2 bath • 1604 ft²
3 bedroom semi-detached house for sale in Kings Head Hill, Chingford, E4 — £650,000 • 3 bed • 2 bath • 1100 ft²
3 bedroom detached house for sale in Farm End, London, E4 — £1,150,000 • 3 bed • 2 bath • 1662 ft²
3 bedroom semi-detached house for sale in Epping Way, Chingford, E4 — £650,000 • 3 bed • 2 bath • 1077 ft²
4 bedroom semi-detached house for sale in Sewardstone Road, Waltham Abbey,EN9 3QF, EN9 — £635,000 • 4 bed • 2 bath • 1646 ft²
3 bedroom house for sale in Ainslie Wood Gardens, Chingford, E4 — £575,000 • 3 bed • 1 bath • 935 ft²


























































































