Move-in ready two-bedroom flat with parking and long lease, minutes from Bridport centre..
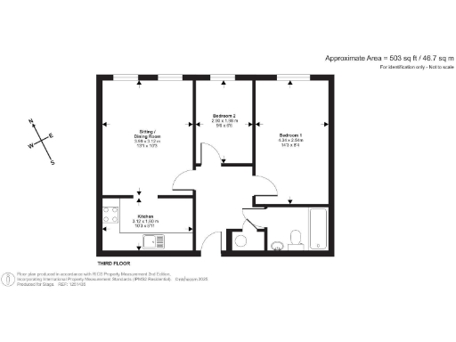
Third-floor two-bedroom apartment with lift access
This well-presented third-floor apartment offers ready-to-live-in accommodation ideal for first-time buyers or buy-to-let investors. Finished recently with new carpets and decoration, the flat is move-in ready and comes with no onward chain — a straightforward purchase in a convenient Bridport location.
Set in a modern purpose-built block (built c.2001) the home benefits from a passenger lift, allocated off-street parking and well-kept communal gardens. The layout includes a living/dining room with feature fireplace, fitted kitchen, two bedrooms and a contemporary bathroom, all served by gas central heating and double glazing.
Practical strengths include a very long lease (999 years from 2000, c.977 years remaining) and a share of freehold. Service charges are approximately £1,200 a year; long-term and holiday lets are permitted but pets are not. The apartment’s compact footprint means low running costs, but space is best suited to a small household or rental use.
Location is a major draw: a few minutes’ walk to Bridport town centre with shops, cafés and amenities, and easy road access to the Jurassic Coast and nearby towns. Overall, this is a tidy, low-maintenance property that suits someone seeking convenience, investment potential or a manageable first home.
2 bedroom apartment for sale in West Allington, Bridport, Dorset, DT6 — £170,000 • 2 bed • 1 bath • 544 ft²
2 bedroom apartment for sale in West Allington, Bridport, DT6 — £218,000 • 2 bed • 2 bath • 872 ft²
2 bedroom apartment for sale in Normandy Way, Bridport, DT6 — £139,000 • 2 bed • 1 bath • 677 ft²
2 bedroom apartment for sale in West Court, Bridport, DT6 — £200,000 • 2 bed • 1 bath • 690 ft²
2 bedroom apartment for sale in Alexandra Court, Bridport, DT6 — £159,950 • 2 bed • 1 bath • 571 ft²
2 bedroom flat for sale in Bridport, DT6 — £180,000 • 2 bed • 1 bath • 461 ft²


























































