**Standout Features:**
- Unique self-build home designed by award-winning architects A'Bear&Ball
- Bright, open-plan living with underfloor heating and triple glazing
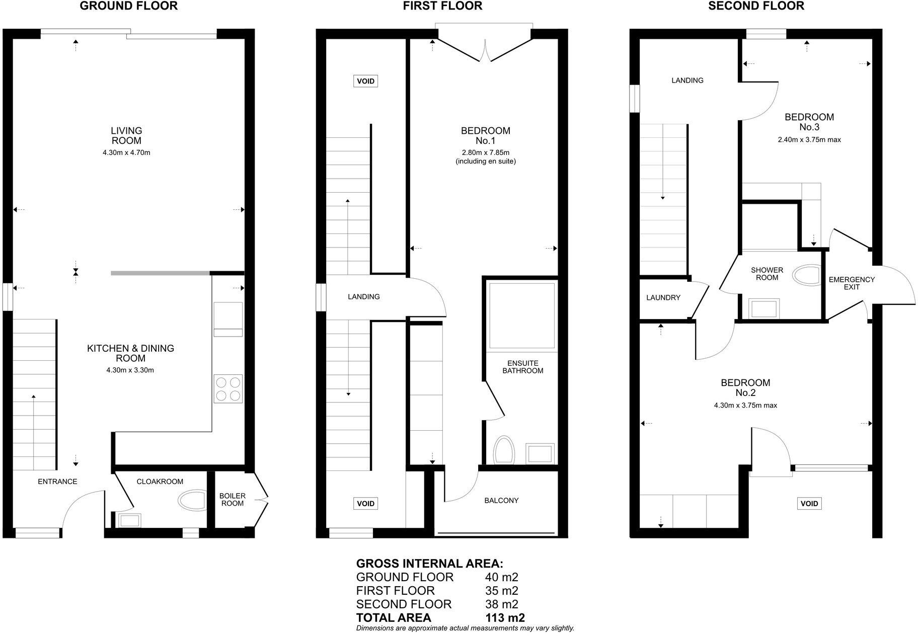
- 3 Bedrooms, 2 bathrooms, and a cloakroom
- Impressive oak and steel staircase as a focal point
- Private garden and driveway parking for two cars
- Built in 2022, chain-free, with modern energy-efficient features (EPC Rating B)
- Located in the vibrant and community-focused area of Graven Hill
In the serene community of Graven Hill, this contemporary self-build home offers a rare lifestyle opportunity defined by light-filled, open spaces and exceptional design. Created by esteemed architects A'Bear&Ball, the immaculate property features a spacious open-plan kitchen, living, and dining area enhanced by underfloor heating and a striking oak and steel staircase. The three bedrooms provide ample space for families, with the master suite boasting a private balcony and an ensuite.
Energy-efficient and completed in 2022, this home impresses with triple glazing and highly insulated walls, ensuring comfort year-round. Enjoy the low-maintenance garden and the convenience of driveway parking. This area thrives with local amenities, including a primary school, shops, and play areas, all fostering a sense of community. With excellent transport links to Oxford, London, and Birmingham, this property combines modern living with peaceful surroundings. Don’t miss the chance to own this unique home—schedule a viewing today and imagine creating your family’s future here.
3 bedroom detached house for sale in Graven Hill, Bicester, Oxfordshire, OX25 — £625,000 • 3 bed • 3 bath • 1949 ft²
3 bedroom detached house for sale in 25 Cherry Walk, Bicester, Oxfordshire, OX25 — £475,000 • 3 bed • 1 bath • 1190 ft²
5 bedroom detached house for sale in Read Place, Ambrosden, Bicester, Oxfordshire, OX25 — £1,195,000 • 5 bed • 4 bath • 3461 ft²
5 bedroom detached house for sale in Graven Hill, Bicester, OX25 — £625,000 • 5 bed • 3 bath • 1291 ft²
2 bedroom terraced house for sale in Hull Lane, Ambrosden, OX25 — £365,000 • 2 bed • 1 bath • 864 ft²
3 bedroom semi-detached house for sale in Graven Hill Village Development Company Ltd, Unit 1, Sales & Marketing Suite, Trinity House West, Graven Hill Road, Ambrosden, Bicester, OX25 2DR, OX25 — £450,000 • 3 bed • 2 bath • 1009 ft²


























































































































