PL7 4LX - 4 bedroom detached house for sale in Plymtree Drive, Plympt…

View on Property Piper

4 bedroom detached house for sale in Plymtree Drive, Plympton, Plymouth, PL7

Summary - 42 PLYMTREE DRIVE PLYMOUTH PL7 4LX

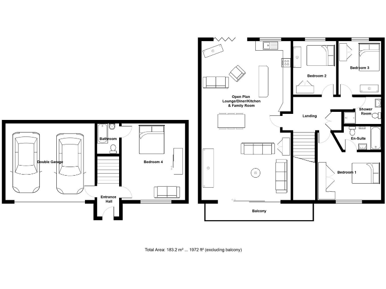
4 bed 3 bath Detached

**Standout Features:**
- Four spacious bedrooms (two en-suite)
- Expansive 33ft open-plan living space
- Eco-friendly with solar panels and air source heat pump
- Convenient double garage and double driveway
- Beautifully landscaped front and rear gardens
- Located in a peaceful cul-de-sac with far-reaching views

**Potential Concerns:**
- Limited historical information on maintenance
- Possible need for updates depending on personal aesthetic preferences

Nestled in a desirable cul-de-sac in Plympton, this versatile four-bedroom detached house is a dream come true for families and investors alike. With a generous 33ft open-plan living area that caters superbly to modern family living, you can enjoy seamless integration between the lounge, dining, and kitchen spaces, ideal for both entertaining and daily comfort. The property shines with eco-friendly features including solar panels with battery storage and an air source heat pump, ensuring both sustainability and reduced energy costs.

The well-presented gardens invite you to relax and enjoy the serene surroundings, while the double garage and ample driveway provide parking convenience for multiple vehicles. Each of the four bedrooms is sizable and functional; the two en-suites add a touch of luxury and privacy. Benefiting from solid investment potential, low crime rates in the area, and proximity to good schools, this property promises not only a comfortable home but also forward-thinking possibilities for growth and value appreciation. Schedule your viewing today, as homes in this sought-after location do not last long!

Property Details

Brochure Descriptions

Image Descriptions

Rooms

Textual Property Features

Detected Visual Features

EPC Details

Nearby Schools

Nearest Bars And Restaurants

,,,,}

Nearest General Shops

,,}

Nearest Grocery shops

,,}

Nearest Supermarkets

,,}

Nearest Religious buildings

,,}

Nearest Medical buildings

,,,}

Nearest Leisure Facilities

,,,,}

Nearest Tourist attractions

,,}

Nearest Train stations

,,,,}

Nearest Bus stations and stops

,,,,}

Nearest Hotels

,,}

Tags

Local Market Stats

AirBnB Data

Similar Properties

Meta

High Res Images

Compatible Images

Low res Images

Thumbnails

Raw Images

High Res Floorplan Images

Compatible Floorplan Images

Low res Floorplan Images

FloorplanImages Thumbnail

Raw Floorplan Images