**Standout Features:**
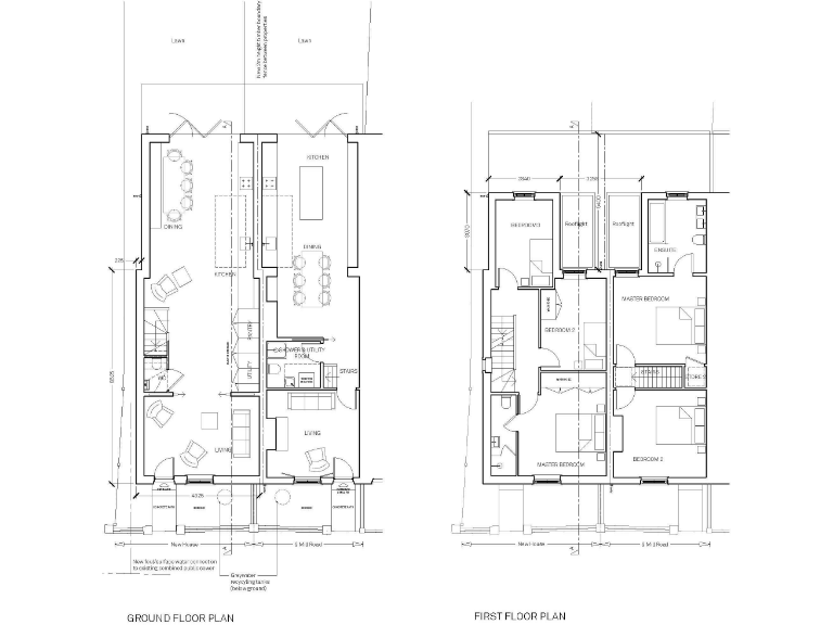
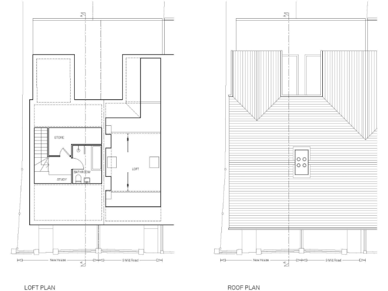
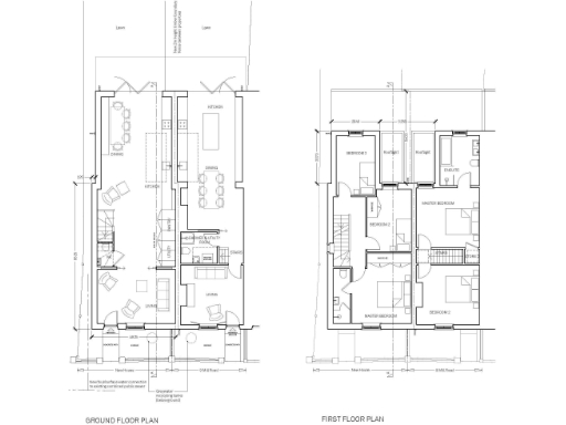
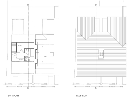
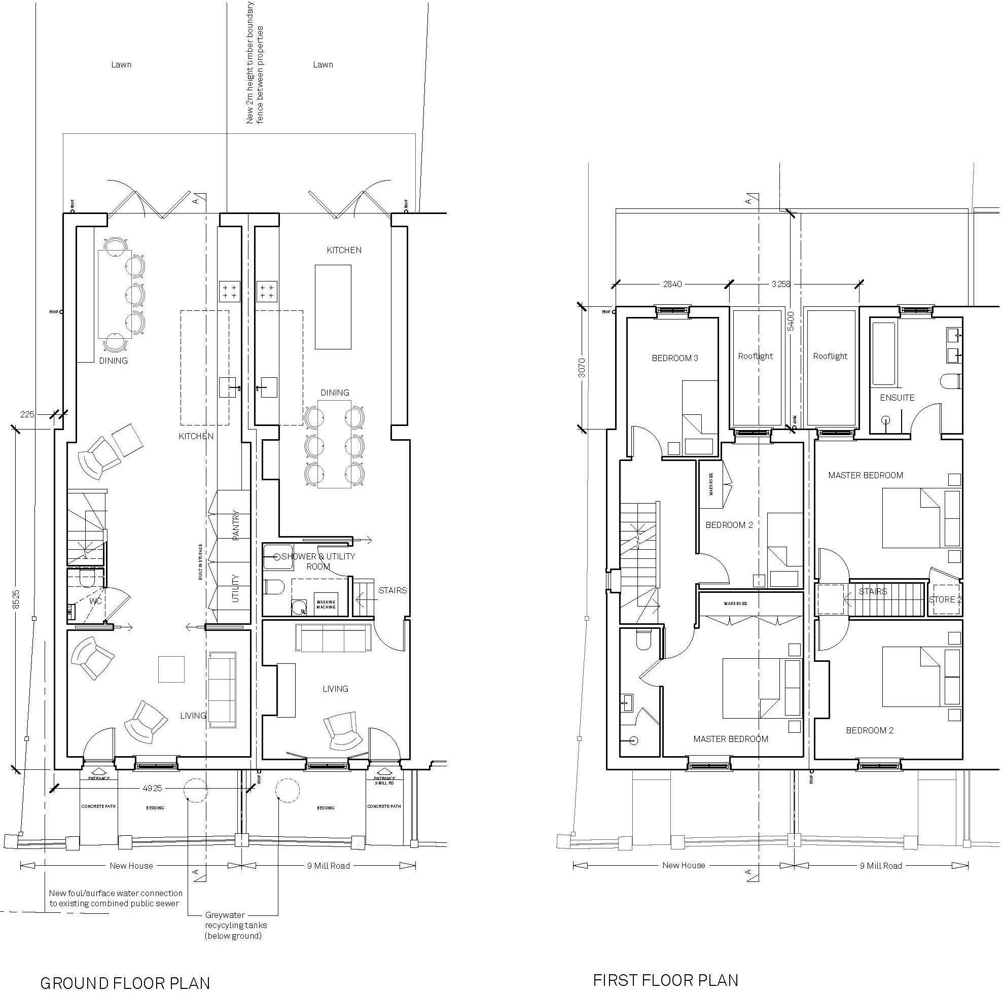
- Building plot for an attached three-bedroom house with planning consent (CR/2023/0484/FUL).
- Three floors designed with open-plan living.
- Convenient location just a short walk from local shops and Three Bridges railway station.
- Freehold tenure with good broadband speeds and excellent mobile signal.
**Potential Downsides:**
- Seated in an area with high crime rates.
- Final planning details pending due to CIL payment of £12,950 to be covered by the current owner.
Unlock the potential of your dream home on this spacious building plot in Mill Road, Crawley! With confirmed planning consent for a stylish attached three-bedroom house arranged over three floors, this is an ideal opportunity for self-builders looking to create a modern living space designed for open-plan enjoyment. Enjoy the convenience of being minutes away from local shops and Three Bridges railway station, making it perfect for commuting.
Although the area does experience higher crime rates, the advantages of broadband accessibility, excellent mobile coverage, and proximity to educational facilities—including state-funded schools with good and outstanding ratings—offer a strong foundation for families or investors seeking rental potential. With renovation opportunities to customize your home, act quickly to secure this exclusive plot, as it represents a remarkable chance to build your future in a friendly yet evolving neighborhood.
Land for sale in Land on the East Side of, Tilgate Drive, Crawley, West Sussex, RH10 1TN, RH10 — £30,000 • 1 bed • 1 bath
Land for sale in Hophurst Lane, Crawley Down, RH10 — £700,000 • 1 bed • 1 bath • 3000 ft²
Detached house for sale in Jersey Road, Crawley, RH11 — £15,000 • 1 bed • 1 bath
3 bedroom end of terrace house for sale in Westfield Road, West Green, Crawley, West Sussex, RH11 7BT, RH11 — £400,000 • 3 bed • 1 bath • 1445 ft²
Property for sale in Building plots adjoining Redroofs, RH6 — £375,000 • 1 bed • 1 bath • 2000 ft²
3 bedroom end of terrace house for sale in Westfield Road, West Green, Crawley, West Sussex, RH11 — £400,000 • 3 bed • 2 bath • 1445 ft²


































