Large one-bed with private sun terrace and secure parking in a Grade II listed mill, chain free..
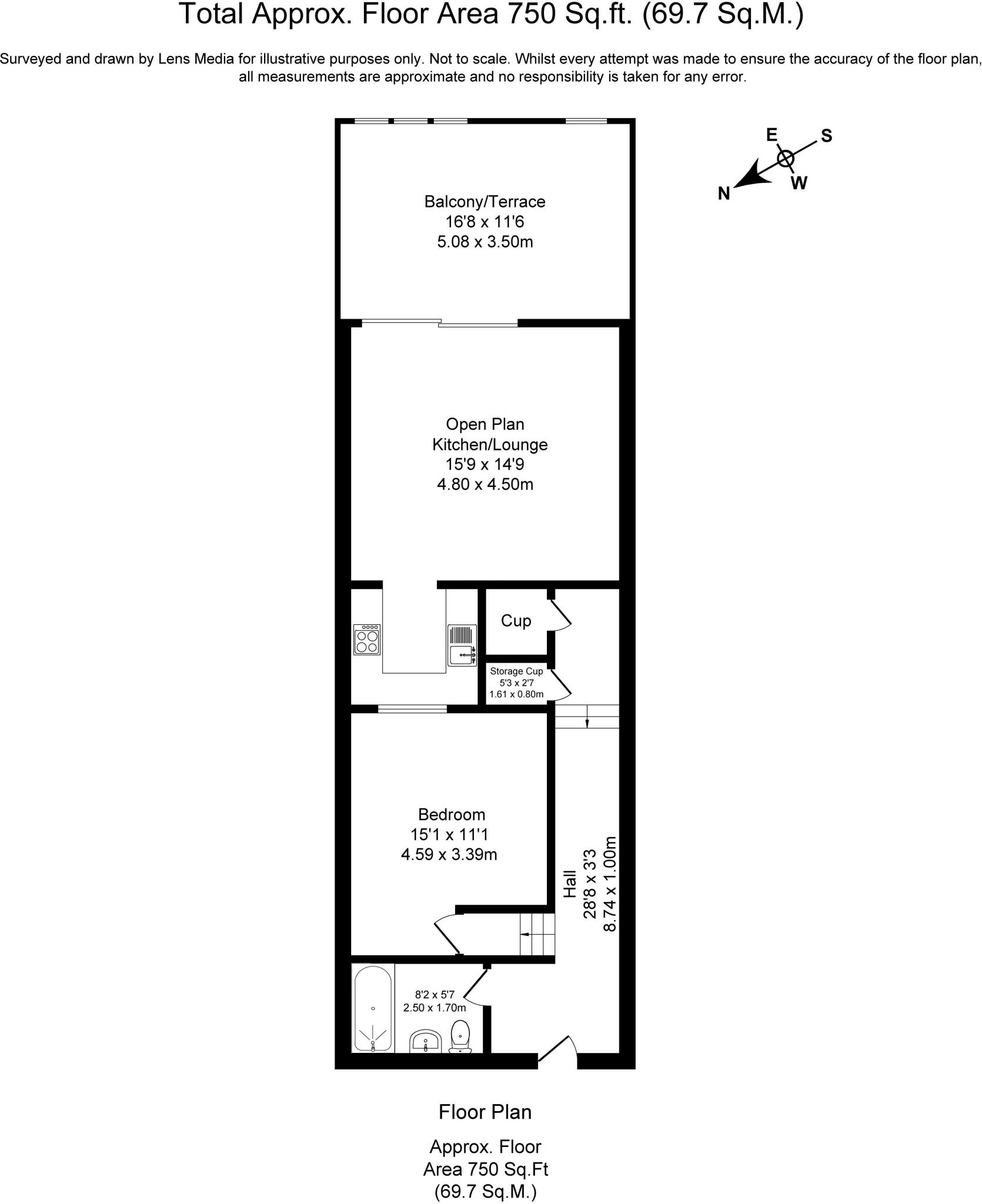
Approx. 750 sq ft — large one-bedroom mill conversion
This fourth-floor one-bedroom apartment occupies a generous footprint (approx. 750 sq ft) within Holden Mill, a Grade II listed former cotton mill converted to executive apartments. High ceilings, original exposed brick and large windows combine with a modern fitted kitchen and a contemporary Villeroy & Boch bathroom to deliver a characterful, low-maintenance home ready to move into.
A standout feature is the 16' private sun terrace, accessed from the open-plan living space — an uncommon outdoor room for a flat and ideal for al-fresco dining or relaxing with views over the landscaped communal grounds. The development is gated with secure allocated indoor parking and lift access to the fourth floor, enhancing everyday convenience and security.
Practical considerations: the apartment is leasehold (898 years remaining) with an annual service charge of £2,991 and ground rent of £150 per year. As a Grade II listed building, any external or heritage-sensitive alterations will be restricted and may affect insurance and consent processes. Heating is by electric storage heaters, which can be more costly than gas alternatives.
Offered chain free, this property suits a first-time buyer or investor seeking a character conversion with strong kerb appeal, good transport links into Bolton and Manchester, and low local crime. Confirmatory checks on exact internal floor area, service charge arrangements and any listed-building conditions are recommended before purchase.
1 bedroom apartment for sale in Holden Mill, Blackburn Road, Bolton, BL1 — £110,000 • 1 bed • 1 bath • 615 ft²
1 bedroom apartment for sale in Holden Mill, Blackburn Road, Bolton, BL1 — £115,000 • 1 bed • 1 bath • 585 ft²
1 bedroom apartment for sale in Holden Mill, Blackburn Road, Bolton, BL1 — £105,000 • 1 bed • 1 bath • 585 ft²
1 bedroom apartment for sale in Holden Mill, Blackburn Road, Bolton, BL1 — £110,000 • 1 bed • 1 bath • 665 ft²
1 bedroom apartment for sale in Holden Mill, Blackburn Road, Bolton, BL1 — £115,000 • 1 bed • 1 bath • 620 ft²
2 bedroom apartment for sale in Holden Mill, Blackburn Road, Bolton, BL1 — £125,000 • 2 bed • 2 bath • 890 ft²














































































































































































































































