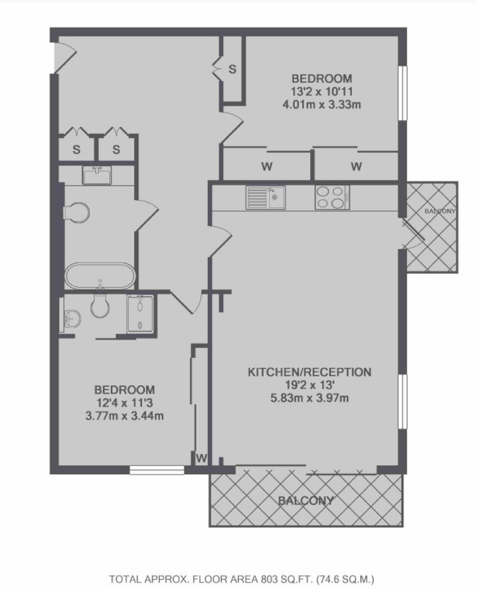
**Standout Features:**
- High-spec two-bedroom, two-bathroom apartment
- Chain-free sale
- Luxurious amenities: gym, pool, sauna, steam room, 24-hour concierge
- Two private balconies with urban views
- Excellent transport links within 0.4 miles of London Bridge Station
- Leasehold with 986 years remaining
**Key Considerations:**
- Service charge: £11,551/year (high)
- Ground rent: £1,317/year (expensive)
- Above-average crime rate in the local area
Discover the epitome of modern urban living in this outstanding two-bedroom flat at One Tower Bridge. Featuring chic design and high-quality finishes, the open-plan kitchen and living area offer ample space for gatherings, complemented by not one but two private balconies that invite in natural light and stunning city views. With exclusive access to a health club equipped with a gym, pool, sauna, and steam room, as well as 24-hour concierge service, this property delivers a lifestyle of luxury and convenience.
Centrally located just off the vibrant South Bank, you’re steps away from iconic landmarks and an array of multicultural amenities that enhance city living. This flat presents a unique opportunity for both first-time buyers seeking a sophisticated abode and investors looking for a valuable addition to their portfolio. However, take note of the relatively high service charge and ground rent. Don’t miss your chance to secure this exceptional property—urban elegance in a prime location awaits!
2 bedroom flat for sale in Duchess Walk, Tower Bridge, SE1 — £890,000 • 2 bed • 2 bath • 803 ft²
2 bedroom apartment for sale in One Tower Bridge, Southwark, London, SE1 — £780,000 • 2 bed • 2 bath • 775 ft²
2 bedroom flat for sale in Earls Way, Tower Bridge, SE1 — £1,750,000 • 2 bed • 2 bath • 1195 ft²
3 bedroom flat for sale in Duchess Walk, One Tower Bridge, SE1 — £1,800,000 • 3 bed • 3 bath • 1325 ft²
2 bedroom flat for sale in Earls Way, Tower Bridge, SE1 — £1,750,000 • 2 bed • 2 bath • 1195 ft²
2 bedroom flat for sale in Chatsworth House, One Tower Bridge, Tower Bridge, SE1 — £1,350,000 • 2 bed • 2 bath • 1058 ft²














































