Extended family home with large garden and integral garage.
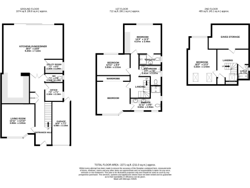
Over 2,270 sq ft across three floors and flexible accommodation
This extended four-bedroom semi-detached house offers over 2,270 sq ft of flexible family living across three floors. The ground floor provides a large open-plan kitchen/breakfast/living area with underfloor heating, full-width sliding doors and a breakfast bar, plus a separate living room and study for flexible work-from-home use. A utility room and integral garage add practicality for family life.
The principal bedroom includes a large en-suite with twin sinks; a further en-suite serves another bedroom and there is an additional shower room on the top floor. The loft conversion provides a generous fourth bedroom with eaves storage, so sleeping and storage options are strong for a growing family or multi-generational household.
Outside, the generous rear garden includes a full-width concrete base suitable for a garden office, shed and patio. Off-street parking is provided by a driveway and integral garage. The property sits in an affluent, low-crime area with good local schools and fast broadband — attractive for commuters and families.
Notable practical points: glazing install dates are not recorded, and the property dates from the 1950s–1960s, so some buyers may want surveys to check services and fabric. Council tax is above average. Overall this is a spacious, well-configured family home with clear scope for immediate occupation or modest modernisation to personal taste.
4 bedroom detached house for sale in Penman Close, St. Albans, Hertfordshire, AL2 — £750,000 • 4 bed • 4 bath • 1900 ft²
5 bedroom detached house for sale in Watford Road, St. Albans, Hertfordshire, AL2 — £1,000,000 • 5 bed • 3 bath • 2657 ft²
4 bedroom semi-detached house for sale in Mortimer Crescent, Kings Park, St. Albans, Hertfordshire, AL3 — £1,100,000 • 4 bed • 3 bath • 2059 ft²
3 bedroom semi-detached house for sale in North Orbital Road, St. Albans, Hertfordshire, AL2 — £500,000 • 3 bed • 1 bath • 1018 ft²
4 bedroom terraced house for sale in St. Johns Court, Beaumont Avenue, St. Albans, Hertfordshire, AL1 — £700,000 • 4 bed • 2 bath • 1264 ft²
4 bedroom detached house for sale in St. Barts Close, St. Albans, Hertfordshire, AL4 — £1,250,000 • 4 bed • 2 bath • 1725 ft²










































































































