**Standout Features:**
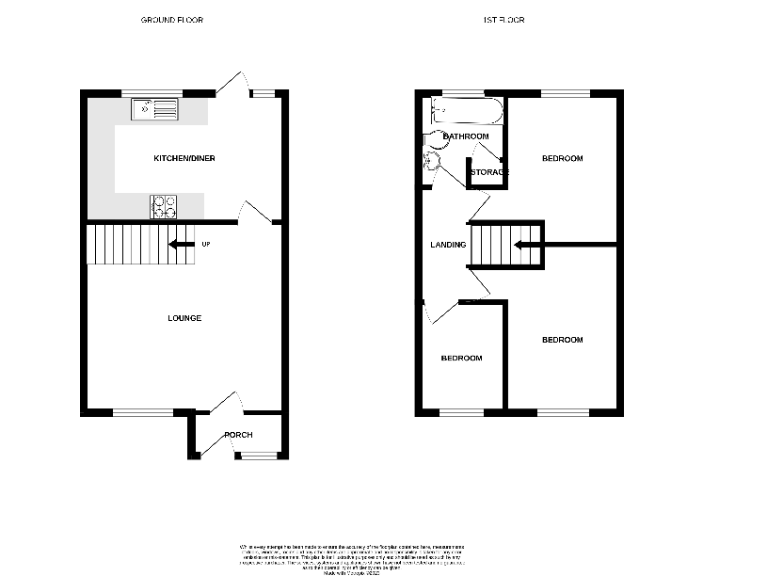
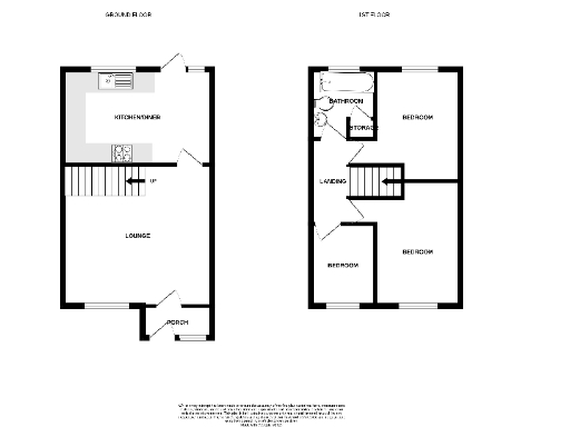
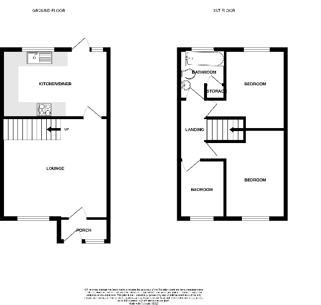
- Modern three-bedroom terraced house
- Garage in a block of four for added convenience
- Recently updated kitchen
- Enclosed rear garden with access to a cycle path
- Close proximity to amenities and the scenic Glamorgan Heritage Coast
- Excellent transport links to Cardiff and Bridgend
- No chain—move-in ready!
**Summary:**
Discover your ideal family home at this modern three-bedroom terraced house in Harding Close, Llantwit Major. This delightful property features a spacious enclosed garden and an adjacent garage, enhancing both privacy and convenience. Inside, you’ll find a contemporary living room and a stylish kitchen complete with built-in appliances, thoughtfully designed for family life. The first floor comprises three comfortable bedrooms, perfect for accommodating family members or guests.
Situated in a desirable residential area, you are just a stone's throw from local amenities, schools, and the stunning coastal walks along the Glamorgan Heritage Coast. The property boasts efficient UPVC double glazing and gas central heating, making it both comfortable and low-maintenance. Although the property is move-in ready, the enclosed garden presents opportunities for personal touches and landscaping.
With strong transport links to Cardiff and Bridgend, alongside a low crime rate and a family-friendly community charm, this home presents a fantastic opportunity for first-time buyers or families looking to settle in a vibrant town. Act fast—properties like this don’t last long!
3 bedroom semi-detached house for sale in Regency Close, Llantwit Major, South Glamorgan, Vale Of Glamorgan, The, CF61 — £250,000 • 3 bed • 1 bath • 650 ft²
2 bedroom semi-detached house for sale in Caer Worgan, Llantwit Major, South Glamorgan, Vale Of Glamorgan, The, CF61 — £200,000 • 2 bed • 1 bath • 6059 ft²
4 bedroom detached house for sale in Gwaun Illtuds, Llantwit Major, South Glamorgan, Vale Of Glamorgan, The, CF61 — £450,000 • 4 bed • 2 bath • 1624 ft²
3 bedroom semi-detached house for sale in Clos Celyn, Barry, CF63 — £290,000 • 3 bed • 3 bath • 664 ft²
4 bedroom detached house for sale in Llantwit Major, South Glamorgan, Vale Of Glamorgan, The, CF61 — £420,000 • 4 bed • 2 bath • 6476 ft²
3 bedroom semi-detached house for sale in Southesk Place, Barry, CF62 — £430,000 • 3 bed • 1 bath • 1098 ft²






















































