TW16 7SD - 3 bed threebed terraced home in The Vale, TW16 7SD

View on Property Piper

3 bedroom terraced house for sale in Sunbury-on-Thames, Surrey, TW16

Summary - 15 THE VALE SUNBURY-ON-THAMES TW16 7SD

3 bed 2 bath Terraced

Spacious family home with garden, driveway and extension potential (STPP)..
Three double bedrooms with flexible third room use
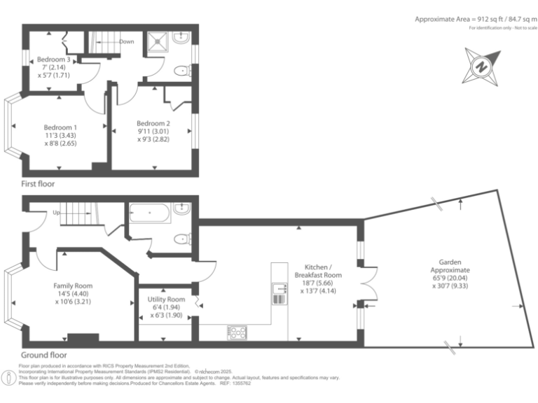
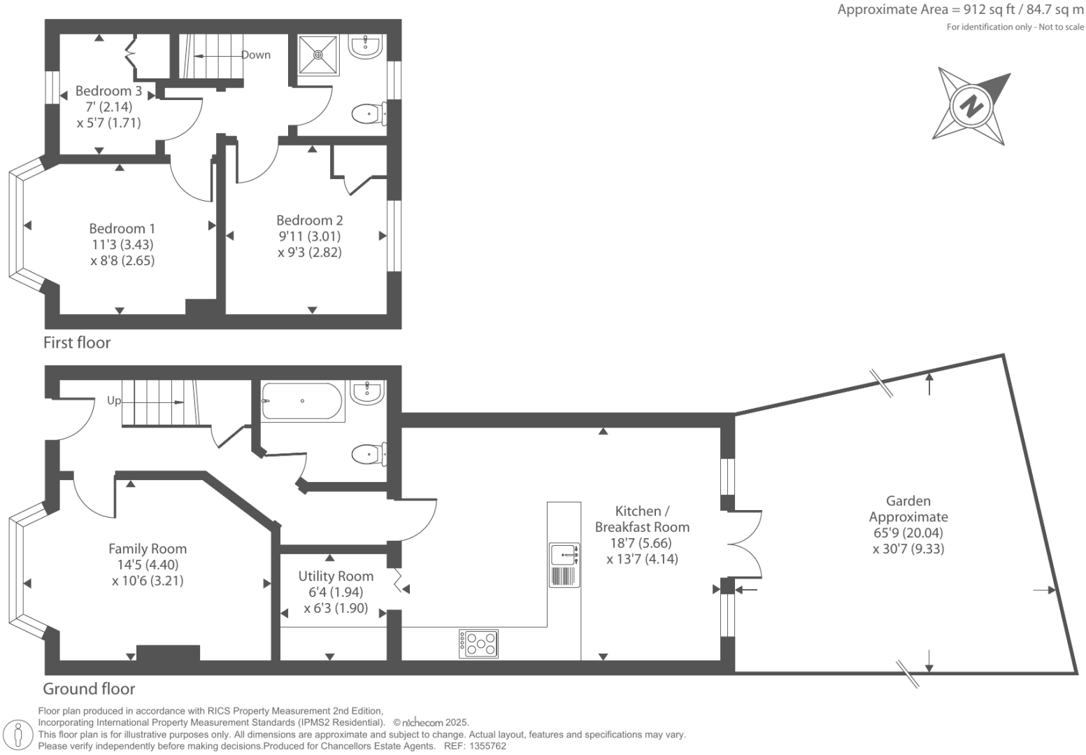
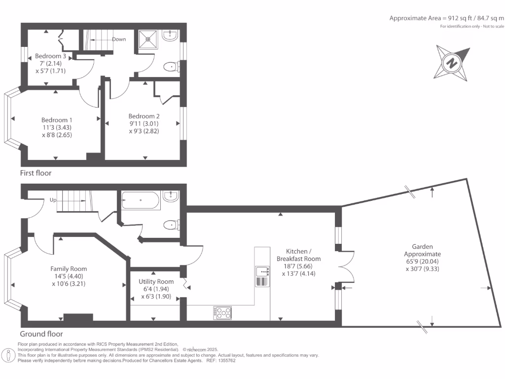
This well-proportioned three-bedroom mid-terrace in Sunbury-on-Thames suits a growing family seeking practical space close to good schools. The ground floor benefits from a large rear extension and an open-plan kitchen/diner that creates a sociable hub, plus a separate reception room and handy downstairs WC for everyday convenience. Landscaped gardens and French doors provide a calm indoor–outdoor flow, while off-street parking for two cars and a utility room add useful family amenities.

The house is freehold, gas-heated with radiators, double-glazed and offers around 912 sq ft of living space. Constructed between 1930–1949, the property has character but may need improvement: walls are solid brick with assumed no insulation and some owners may wish to upgrade heating, insulation or interior finishes. There is scope to increase space subject to planning (STPP) if you need more living area.

Location strengths include fast broadband, excellent mobile signal and proximity to several well-rated schools, including a highly regarded secondary. Be aware the wider area is classified as hampered and hard-pressed, and the neighbourhood sees average crime rates — factors to consider alongside the property’s family-friendly features and reasonable council tax. Overall this is a practical, move-in-ready home with sensible improvement potential for the next owner.

Property Details

Image Descriptions

Floorplan Description

Rooms

Textual Property Features

Target Audience

AI Tags

Detected Visual Features

EPC Details

Nearby Schools

Nearest Bars And Restaurants

,,,,}

Nearest General Shops

,,}

Nearest Grocery shops

,,}

Nearest Supermarkets

,,}

Nearest Religious buildings

,,}

Nearest Medical buildings

,,,}

Nearest Airports

,}

Nearest Leisure Facilities

,,,,}

Nearest Tourist attractions

,,}

Nearest Train stations

,,,,}

Nearest Bus stations and stops

,,,,}

Nearest Hotels

,,}

Tags

Local Market Stats

AirBnB Data

Similar Properties

Meta

High Res Images

Compatible Images

Low res Images

Thumbnails

Raw Images

High Res Floorplan Images

Compatible Floorplan Images

Low res Floorplan Images

FloorplanImages Thumbnail

Raw Floorplan Images