Vacant café plus two rental flats — immediate income and refit potential.
Freehold mixed-use building in prime Swing Bridge town centre location
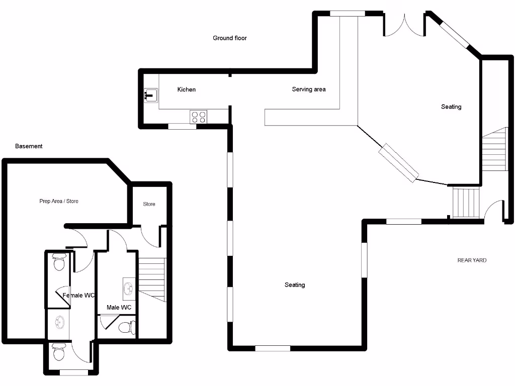
A rare freehold mixed-use opportunity in Whitby’s prime town-centre by the Swing Bridge. The ground-floor commercial unit — formerly a busy fish and chip cafe/takeaway — is offered with vacant possession and provides a servery, split-level dining area (seating up to 60) plus lower-ground preparation, stores and separate WCs. The tenant fit-out has been removed, giving a new owner flexibility to refit or rebrand for retail, catering or alternative town-centre uses (property lies within a Conservation Area).
Above the retail are two income-producing flats (1 x two-bedroom, 1 x one-bedroom) currently let on assured shorthold tenancies, offering immediate rental income. The building has traditional Victorian character with arched frontage and decorative brickwork, and benefits from an excellent central location close to Whitby’s main shopping streets, harbour and tourist footfall.
Important practical points: a portion only of the rear yard is included in the ownership and access back to Baxtergate is via a locked gate adjacent to 72–74 Baxtergate. The commercial unit’s fixtures were removed after the last tenancy, so a purchaser should allow for refit costs. Broadband speeds in the area are very slow and the wider area is classified as deprived/hampered aspiration, which may affect longer-term footfall patterns and tenant demand.
Financial and regulatory notes: freehold tenure, business rates are currently assessed (ratable value previously £25,000 and revalued at £14,500) — prospective buyers should check current liabilities and post-unitary authority arrangements. Council tax bands for the flats are B and A. Buyers should commission their own surveys and checks on services and structural condition.
2 bedroom character property for sale in Honeyz, 106 Church Street, YO22 — £485,000 • 2 bed • 1 bath • 1236 ft²
Commercial property for sale in 9 Sandgate, Whitby, YO22 — £350,000 • 3 bed • 1 bath • 500 ft²
4 bedroom town house for sale in Flowergate, Whitby, YO21 — £645,000 • 4 bed • 1 bath • 6000 ft²
2 bedroom character property for sale in 15 Flowergate, Whitby, YO21 — £350,000 • 2 bed • 2 bath • 600 ft²
Property for sale in The Ground Floor Shop, The Old Jet Works, Brunswick Street, Whitby, YO21 — £50,000 • 1 bed • 1 bath • 889 ft²
3 bedroom character property for sale in 12 & 12a Brunswick Street, Whitby, YO21 — £268,000 • 3 bed • 1 bath • 867 ft²


































