Bright extended home with huge enclosed garden, ideal for first purchases or value adds.
Freehold two-bedroom end-terrace, approximately 775 sq ft
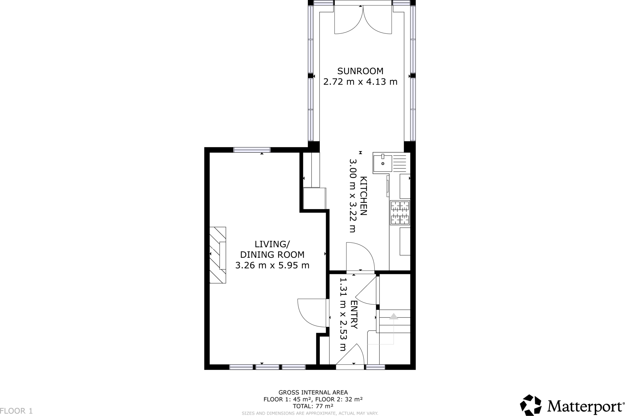
This two-bedroom end-terrace on Cairnvale Crescent offers practical, well-lit living across an average-sized 775 sq ft layout. The property is freehold with gas central heating, double glazing and a modern sunroom extension that opens via French doors onto a large, fully enclosed corner garden — a major asset for families, pets or gardeners. Broadband speeds are fast and public transport links connect to Aberdeen city centre and nearby university.
The interior is generally well-presented: a bright lounge with a feature fireplace, a contemporary kitchen flowing into the sunroom, two double bedrooms with built-in storage, and a tiled three-piece bathroom. The large garden provides space for entertaining and comes with potential for extension or redevelopment subject to planning permission.
Notable negatives are straightforward: the exterior appears dated and the property was constructed as affordable post‑war housing so prospective buyers should expect some modernization or refurbishment to update finishes and services. The area is in a very deprived classification which may affect long-term resale in some markets. Council tax is moderate.
Overall, the house suits first-time buyers or investors seeking a practical, affordable home with significant outdoor space and clear scope to add value through targeted improvements.
2 bedroom end of terrace house for sale in Stewart Crescent, Aberdeen, AB16 — £115,000 • 2 bed • 1 bath • 793 ft²
2 bedroom terraced house for sale in 11 Devenick Place, Garthdee, Aberdeen, AB10 — £108,000 • 2 bed • 1 bath • 721 ft²
2 bedroom end of terrace house for sale in Kettlehills Crescent, Aberdeen, AB16 — £118,000 • 2 bed • 1 bath • 666 ft²
2 bedroom terraced house for sale in Countesswells Park Drive, Aberdeen, AB15 — £150,000 • 2 bed • 2 bath • 611 ft²
2 bedroom end of terrace house for sale in Allison Close, Aberdeen, AB12 — £110,000 • 2 bed • 2 bath • 581 ft²
3 bedroom terraced house for sale in Cornhill Terrace, Aberdeen, AB16 — £150,000 • 3 bed • 1 bath • 783 ft²






























































