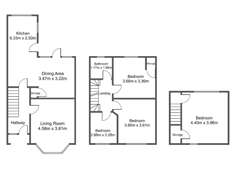
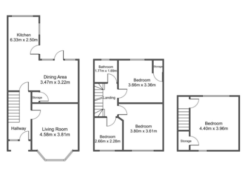
Spacious family layout with garden and large kitchen-diner in Coundon.
- Four bedrooms across three levels, including a large second-floor room
- Extended open-plan kitchen-diner overlooking the rear garden
- Bay-front living room with period character and good natural light
- Fully enclosed landscaped rear garden with patio and lawn
- Single family bathroom serves four bedrooms; compact size
- Total area approx. 855 sq ft — comfortable, not spacious
- Freehold tenure; fast broadband and excellent mobile signal
- Close to schools, local shops and 1.6 miles from City Centre
Set on Laburnum Avenue in Coundon, this well-kept Victorian terraced house offers four bedrooms across three levels and a generous extended kitchen-diner ideal for family life. The front living room with bay window brings natural light and period character, while the open-plan rear extension creates a sociable heart that overlooks a fully enclosed, landscaped garden with patio and lawn.
Practical details suit everyday family needs: good local schools (including Coundon Court catchment), fast broadband and excellent mobile signal, low local crime and easy access to public transport. The property is freehold and sits approximately 1.6 miles from Coventry City Centre, making shopping and leisure facilities straightforward to reach.
Considerations: the house totals about 855 sq ft, so rooms are comfortably proportioned rather than expansive. There is a single family bathroom serving four bedrooms, and the compact bathroom may feel tight for larger families. Overall, the home has been maintained and refreshed but offers potential for personalisation, particularly if buyers want to reconfigure or modernise finishes.
This home will suit buyers seeking a characterful, practical family base in a stable neighbourhood — families who value good schools, outdoor space and a bright social kitchen-diner, with scope to adapt the interior to their tastes.
4 bedroom terraced house for sale in Laburnum Avenue, Coventry, CV6 — £250,000 • 4 bed • 1 bath • 1342 ft²
4 bedroom terraced house for sale in Laburnum Avenue, Coundon, Coventry, CV6 — £260,000 • 4 bed • 1 bath • 1263 ft²
4 bedroom terraced house for sale in Middleborough Road, Coundon, Coventry, CV1 — £250,000 • 4 bed • 2 bath • 951 ft²
3 bedroom terraced house for sale in Holyhead Road, Coventry, CV5 — £260,000 • 3 bed • 1 bath • 905 ft²
4 bedroom end of terrace house for sale in Westhill Road, Coundon, Coventry, CV6 — £335,000 • 4 bed • 3 bath • 1399 ft²
2 bedroom terraced house for sale in Bablake Close, Coundon, Coventry, CV6 — £198,000 • 2 bed • 1 bath • 820 ft²














































































































































































