**Standout Features:**
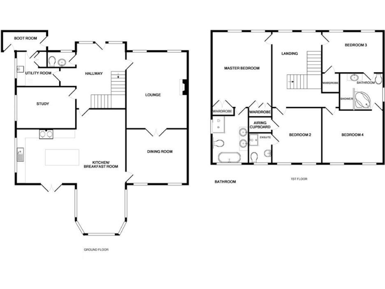
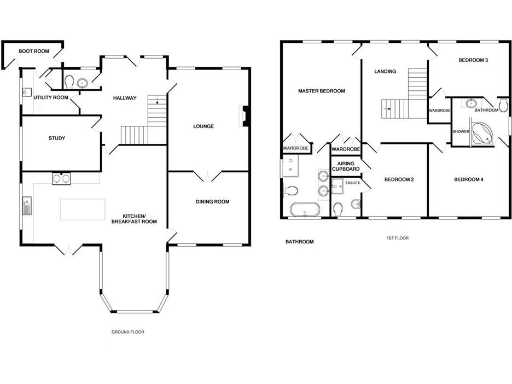
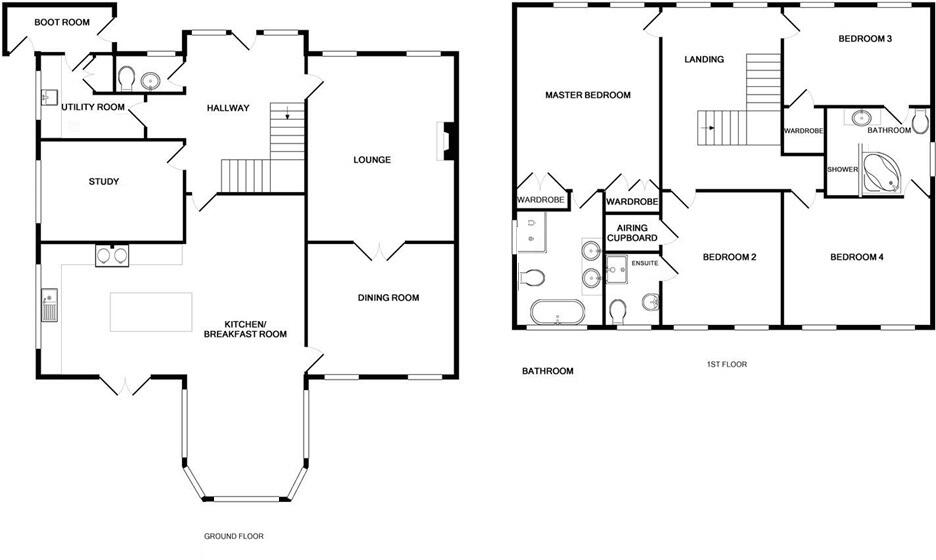
- Imposing, high-quality detached family home
- Four spacious bedrooms, each with en-suite facilities
- Open-plan kitchen with dining area and day room
- Versatile spaces including a lounge, dining room, and study
- Private landscaped rear garden with patio and timber summerhouse
- Eco-friendly with 33 solar panels, an EV charging point, and battery storage
- Located in a prestigious village, Barnoldby-le-Beck
**Summary:**
Discover an impressive family haven in the heart of Barnoldby-le-Beck. This elegantly finished four-bedroom detached house is designed for modern living, featuring generous spaces and luxurious touches throughout. Each bedroom offers convenient en-suite access, ideal for families seeking comfort and privacy. The stylishly appointed open-plan kitchen flows seamlessly into both a spacious dining area and a bright day room—perfect for social gatherings. Enjoy cozy evenings in the inviting lounge or host formal dinners in the dining room.
Step outside to your beautifully landscaped garden, complete with a charming patio and a timber summerhouse, ideal for alfresco dining and relaxation. Eco-conscious buyers will appreciate the 33 solar panels and EV charging capabilities. Although the property comes with some maintenance needs typical of high-quality finishes, the long-term benefits make it an appealing choice. With a sought-after village location just steps away from local amenities, this home presents an exclusive opportunity for families or investors alike. Don't miss out—schedule your viewing today, as properties like this won't be on the market for long!
4 bedroom detached house for sale in Beck Farm Mews, Barnoldby Le Beck, DN37 — £575,000 • 4 bed • 3 bath • 1518 ft²
4 bedroom detached house for sale in Manor Cliff, Normanby-by-spital, LN8 — £400,000 • 4 bed • 2 bath • 2100 ft²
3 bedroom detached house for sale in Chapel Lane, Barnoldby-le-beck, Grimsby, DN37 — £385,000 • 3 bed • 2 bath • 1802 ft²
5 bedroom detached house for sale in Birketts Lane, Covenham St. Bartholomew, LN11 — £795,000 • 5 bed • 3 bath • 3437 ft²
6 bedroom detached house for sale in The Oaks, Main Road, Barnoldby-Le-Beck, Grimsby, DN37 — £1,150,000 • 6 bed • 4 bath • 4891 ft²
4 bedroom detached house for sale in Station Road, North Thoresby, DN36 — £650,000 • 4 bed • 3 bath • 2840 ft²






















































































































