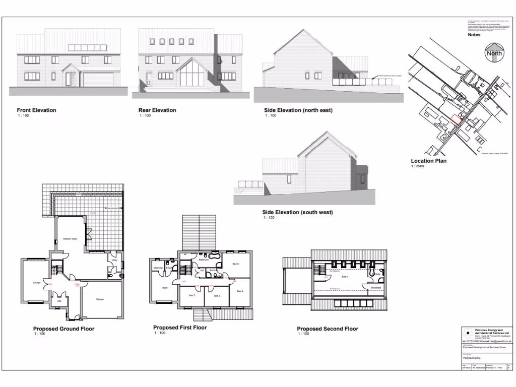
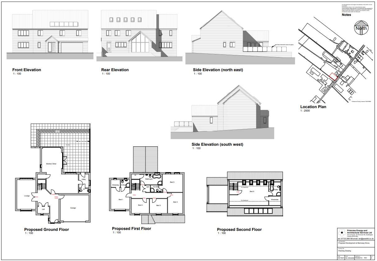
Six-bedroom detached property with strong rental return and panoramic field views.
Six bedrooms and four bathrooms across c.3,144 sq ft
Current income £3,000 pcm with two years left on lease
Freehold; constructed 2022 with modern fixtures and underfloor heating
Stunning field views and large enclosed rear garden
Integral double garage and ample gravel parking
Medium flood risk and very slow broadband speeds
Short lease term may prevent mortgage lending or restrict buyers
A substantial six-bedroom detached building offered freehold with an existing commercial lease producing £3,000 per month. The property, constructed in 2022, occupies a large plot in a quiet hamlet and benefits from an open-plan kitchen/dining/family room, underfloor heating, LPG boiler, integral double garage and generous parking.
This is primarily an investment opportunity: the current lease has two years remaining and produces immediate income. That short lease term is a material consideration — many mortgage lenders and some purchasers require longer unexpired lease periods for lending or purchase. Buyers should request full lease details and be prepared that some lenders may refuse finance on this asset.
On the positive side the house is roomy (approximately 3,144 sq ft) with strong rental potential in the short term and attractive countryside views. Practical drawbacks include medium flood risk, very slow broadband, an expensive council tax band and location in a deprived, remote community which may limit tenant pool or resale speed. Prospective buyers should commission a survey and check lending options and lease terms before committing.
6 bedroom detached house for sale in The Drove, Barroway Drove, Downham Market, PE38 — £625,000 • 6 bed • 4 bath • 3144 ft²
5 bedroom detached house for sale in The Drove, Barroway Drove, Downham Market, PE38 — £465,000 • 5 bed • 2 bath • 1830 ft²
4 bedroom detached house for sale in Ryston End, Downham Market, Norfolk, PE38 — £450,000 • 4 bed • 3 bath • 1448 ft²
4 bedroom detached house for sale in The Drove, Barroway Drove, Downham Market, PE38 — £365,000 • 4 bed • 4 bath • 953 ft²
5 bedroom link detached house for sale in Broomhill, Downham Market, PE38 — £490,000 • 5 bed • 3 bath • 2024 ft²
5 bedroom detached house for sale in High Street, Fincham, PE33 — £750,000 • 5 bed • 4 bath • 2650 ft²






























































































